Az értékesítő:
Biró Ramóna
+36 70 645 0457

Eladó iroda/üzlethelyiség Kecskemét, 140 000 000 Ft, 250 négyzetméter

140 000 000 Ft
iroda/üzlethelyiség, 250 négyzetméter
Azonosító:
11580440
Értékesítés típusa:
eladó
Ingatlan típusa:
iroda/üzlethelyiség
Jelleg:
Iroda
Település:
Kecskemét
Alapterület:
250
Ár:
140 000 000 Ft
Elhelyezkedés:
Házban
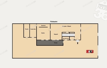
Különleges lehetőség Kecskemét belvárosában! 250 m2; lakóterű családi ház; 539 m2;-es telekkel, melléképülettel és kiváló adottságokkal eladó! A város szívében, mégis csendes környezetben kínáljuk megvételre ezt a tágas, 5 szobás, kétszintes családi házat, amely igazi otthon lehet nagycsaládosoknak vagy akár vállalkozásra, rendelőnek, irodának is ideális választás. Főbb jellemzők: Lakótér: 250 m2 Telek területe: 539 m2 Szobák száma: 5 + konyha-étkező Fürdőszobák: 2 WC-k: 2 Építés éve: 1998, felújítva: 2015 Fűtés: gáz cirkó rendszer Állapot: jó állapotú, azonnal költözhető Melléképület: tárolásra alkalmas, 18 m2 Parkolás: gépkocsi beálló Tetőtér beépített, további bővítésre alkalmas ​Telek és beépíthetőség: Beépíthetőség: 50% Megengedett építménymagasság: 9,5 m Ez kiváló lehetőség akár bővítésre, új épület kialakítására vagy befektetési célra. Elhelyezkedés: Belvárosi lokáció, minden elérhető közelségben: Buszmegálló, bolt 50 méter Iskola/óvoda: 100 méter Mégis nyugodt, családias környezet, rendezett utcafronttal. Figyelem az adatlap megbízónktól kapott adatok alapján készült, pontosságáért felelősséget nem tudunk vállalni! Az iroda legfrissebb, aktuális kínálatát a HOUSE36 saját weboldalán találja!
https://ingatlanok.hu/elado/iroda/kecskemet/140-millio-ft;250-negyzetmeter;iroda-jellegu;nincs-megadva-berendezett/11580440