Az értékesítő:
Lestyán László Józsefné Lakati Melinda
+36 70 455 0967

Eladó családi ház Keszthely, 158 000 000 Ft, 96 négyzetméter

158 000 000 Ft
családi ház, 96 négyzetméter
Építőanyag:
Tégla
Egész szobák:
2
Komfort fokozat:
Dupla komfort
Ingatlan állapota:
Azonosító:
11580542
Értékesítés típusa:
eladó
Ingatlan típusa:
családi ház
Jelleg:
Sorház
Település:
Keszthely
Alapterület:
96
Telekterület:
300
Ár:
158 000 000 Ft
Szintek száma:
2 szint
Fűtés jellege:
Egyedi
Kor:
21-50 éves
Erkély:
Van
Telekterület típusa:
négyzetméter
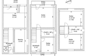
Balatoni településen ELADÓ felújított sorházi lakás Keszthely üdülőövezetében, a Balaton közelében Keszthely egyik kedvelt üdülőövezetében eladó egy hangulatos, 96 m2-es háromszintes sorházi lakás, amely az 1980-as években épült, de az elmúlt években teljes körű felújításon esett át. Az épület téglafalai 10 cm vastag hőszigetelést kaptak, a tetőfedés korszerű cserepeslemezre lett cserélve. A modernizálás részeként minden nyílászáró új, háromrétegű üvegezésű ablakra lett cserélve, továbbá megújult a villamos és fűtésrendszer is. A ház fűtését fatüzelésű kályha és egy 800 literes puffertartály biztosítja, amely a radiátoros rendszeren keresztül oszlatja el a meleget. A lakáshoz egy tágas terasz, valamint gondozott, hangulatos, 300 m2-es kertrész tartozik, kerti sütögetővel és tárolóval. Az udvaron két autó számára kialakított kocsibeálló áll rendelkezésre. Az ingatlan elhelyezkedése ideális: a Balaton partja néhány száz méterre található, a legközelebbi strandok gyalogosan mindössze 10-15 perc alatt megközelíthetők. A környék csendes, mégis közel van a város szolgáltatásaihoz és a tóparti kikapcsolódási lehetőségekhez. Amennyiben felkeltette érdeklődését és szeretné megtekinteni személyesen is az ingatlant kérem hívjon! Referencia szám: M316330
https://ingatlanok.hu/elado/haz/keszthely/158-millio-ft;96-negyzetmeter;5-szoba;egyedi-futes/11580542