Az értékesítő:
Orsolics Zsolt Péter
+36 20 377 0000

Eladó családi ház Siklós, 349 000 000 Ft, 893 négyzetméter

349 000 000 Ft
családi ház, 893 négyzetméter
Egész szobák:
6
Ingatlan állapota:
Épülő
Azonosító:
11580707
Értékesítés típusa:
eladó
Ingatlan típusa:
családi ház
Jelleg:
Kúria
Település:
Siklós
Alapterület:
893
Telekterület:
23721
Ár:
349 000 000 Ft
Szintek száma:
Földszintes
Fűtés jellege:
Egyéb
Kor:
Új építésű
Telekterület típusa:
négyzetméter
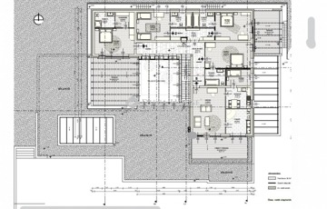
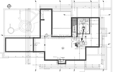
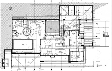
Fedezze fel a Villány-Siklós Borvidék Varázslatát! Az Eladó Magánbirtok egy megálmodott paradicsom, Egyedülálló Panzió és Wellness Központ terveivel, a Siklósi Vár és a Horvát Határvidék Lenyűgöző Panorámájával. Képzelje el, hogy ébredésekor a Siklósi Vár történelmi körvonalai tárulnak szeme elé, míg a Szársomlyó-hegy és a horvát határvidék bámulatos látványa elvarázsolja. Ez a valósággá válhat az újonnan tervezett panzióban és wellness központban, amely a Villány-Siklós borvidék szívében, a Tenkes-hegy oldalában, a híres Sauska borbirtok szomszédságában kap helyet. A tervezett létesítmény, amely mindössze 15 km-re helyezkedik el Villánytól és 5 km-re Harkánytól, tökéletes helyszínt biztosít a pihenésre, a borturizmusra és a kikapcsolódásra egyaránt. A 2,4 hektáros területen, mely erdősávokkal és szőlősorokkal körülvett, egy lenyűgöző, Déllejtésű panoráma tárul a vendégek elé, amely garantáltan felejthetetlenné teszi minden pillanatát. Az új központ magában foglal egy meglévő pinceház átalakításával létrehozott rendezvénytermet, ahol akár 20 fő is kényelmesen elfér. A főépületben további 12 vendég élvezheti a magas színvonalú szobákat és a közösségi tereket, míg a területen elhelyezkedő hat darab luxus faház apartman összesen 24 fő részére nyújt kényelmet és magánosságot. A főépület kivitelezése már 55%-os készültségi szinten áll, és a tervek szerint a wellness részleg, valamint a vendégszobák is ideálisan tájoltak lesznek a napfény és a lenyűgöző kilátás maximális kihasználására. Az építkezés során kiemelt figyelmet fordítottunk a környezetbe való tökéletes illeszkedésre: az épület tömegét alacsonyan tartottuk, a tetőteraszokat növényekkel árnyékolt pergolák díszítik, melyek között szőlőt is fogunk futtatni. A területen meglévő infrastruktúra kiváló: elektromos és ivóvíz csatlakozás már biztosított, a szennyvíz zárt rendszerű tárolóba kerül, míg az esővizet a locsolás céljára gyűjtjük össze. Fedezze fel ezt a békés menedéket, ahol a természet, a kultúra és a modern kényelem harmonikus egyensúlyban van. Legyen része a Villány-Siklós borvidék új gyöngyszemének megszületésében, ahol a pihenés és az élmények garantáltan felejthetetlenek lesznek. 349000000 Ft Keressenek Bizalommal! Érdeklődni.: Orsolics Zsolt + 36(20)3770000 Referencia szám: HZ019908-NOK
https://ingatlanok.hu/elado/haz/siklos/349-millio-ft;893-negyzetmeter;6-szoba;egyeb-futes/11580707