Az értékesítő:
Dr. Vass Zoltán
+36 30 249 0482

Eladó családi ház Szeged, 160 000 000 Ft, 195 négyzetméter

160 000 000 Ft
családi ház, 195 négyzetméter
Építőanyag:
Tégla
Egész szobák:
5
Ingatlan állapota:
Szerkezetkész
Azonosító:
11580955
Értékesítés típusa:
eladó
Ingatlan típusa:
családi ház
Jelleg:
Ikerház
Település:
Szeged
Alapterület:
195
Telekterület:
768
Ár:
160 000 000 Ft
Fűtés jellege:
Hőszivattyú
Terasz:
Van
Erkély:
Nincs
Beépíthető tetőtér:
Nincs
Melléképület:
Nincs
Pince:
Nincs
Klíma:
Van
Telekterület típusa:
négyzetméter
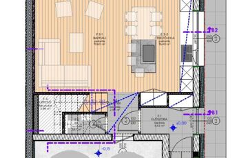
Újszeged kiváló részén eladó, jó elosztású, nappali + 4 szobás kétszintes, 195 négyzetméteres (nettó 160 m2) iker ház, dupla garázzsal, 384 négyzetméteres telekkel, szerkezetkész állapotban. Az ingatlan közelében Nova bevásárlóközpont, Gellért szabadidőközpont, valamint a Holt- Maros sétány található. A ház főbb jellemzői: - lakótér: 160 m2 - Földszint: dupla garázs: 33,06 m2 - fedett terasz: 11,07 + 8,06 m2 - amerikai konyhás nappali 36 m2 - előszoba + előtér + WC. - Emelet: - 4 hálószoba - Fürdőszoba - közlekedő - 2 db terasz - háztartási és gépészeti helyiség Műszaki tartalom a teljesség igénye nélkül: -Lemez alap mikro cölöpökkel -Okos tégla 30 cm tartó falak -20 cm homlokzati hőszigetelés - Monolit vasbeton födém - Dupla soros gipszkarton válaszfalak - Alumínium nyílászárók és árnyékolók - Padló fűtés, Mennyezet hűtés levegős hőszivattyúval napelemmel - Elektromos garázskapu A kulcsrakész ár tartalmazza a térburkolását és a kerítés építést. Fizetési ütemezés: Szerződéskötéskor a vásárló nevére kerül a telek tulajdoni hányad 37.500.000 ,-Ft / lakóegység Szerződéskötéskor 20% vételár rész. Minden ezt követő teljesítés kiegyenlítése a kötbér köteles pénzügyi és műszaki ütemterv szerint történik. Amennyiben felkeltette érdeklődését az ingatlan, hívjon bizalommal a 06302490482 tel. számon, akár hétvégén is. dr. Vass Zoltán (További képekért és információkért kérem hívjon!)
https://ingatlanok.hu/elado/haz/szeged/160-millio-ft;195-negyzetmeter;6-szoba;hoszivattyu-futes/11580955