Az értékesítő:
Kruller Petra
+36 20 583 7555

Eladó családi ház Csór, 75 000 000 Ft, 93 négyzetméter

75 000 000 Ft
családi ház, 93 négyzetméter
Építőanyag:
Tégla
Egész szobák:
3
Komfort fokozat:
Összkomfort
Fűtés módja:
Hőszivattyú
Ingatlan állapota:
Kitűnő
Azonosító:
11581179
Értékesítés típusa:
eladó
Ingatlan típusa:
családi ház
Jelleg:
Családi ház
Település:
Csór
Alapterület:
93
Telekterület:
1235
Ár:
75 000 000 Ft
Szintek száma:
Földszintes
Fűtés jellege:
Geotermikus
Kor:
Új építésű
Terasz:
Nincs
Pince:
Nincs
Telekterület típusa:
négyzetméter
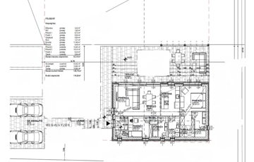
Új építésű családi otthon lenyűgöző örökpanorámával Csór, Iszkaszőlőhegyen! Vh-004670 Csór, Iszkaszőlőhegy egyik legszebb részén, aszfaltozott úton könnyen megközelíthető, örökpanorámás telken ÚJÉPÍTÉSŰ, önálló családi ház ELADÓ, mely kulcsrakész állapotban várja új tulajdonosát. A 2026-ben épülő ingatlan 93 négyzetméter hasznos alapterülettel rendelkezik, mely ideális elrendezést biztosít: egy körbe napozott amerikai konyha-nappali mellett két tágas hálószoba, két különálló fürdőszoba, előszoba és háztartási helyiség került kialakításra. A belső tér rugalmasan alakítható, így igény szerint akár nappali + 3 szobás elrendezés is megvalósítható. Az életteret jelentősen kiterjeszti a házhoz kapcsolódó 79 négyzetméteres terasz. Korszerű Műszaki Megoldások Az otthon energiahatékonyságát a modern műszaki tartalom garantálja. A falazat Ytong téglából, a válaszfalak gipszkartonból készülnek, 15 centiméter vastag homlokzati hőszigeteléssel ellátva. A szeglemezes födém,-tető szerkezetben 30 centiméter vastag, fújt cellulóz szigetelés kerül, melyet Terrán cserép tetőfedés fog zárni. A nyílászárók műanyagból készülnek, 5 kamrás, háromrétegű hőszigetelt üvegezéssel. A fűtésrendszer 11 kilowattos hőszivattyúval megoldott padlófűtést fog biztosítani. A villamos hálózat 3x25A kapacitású, és lehetőség van H-tarifás óra igénylésére. A jövőre gondolva kialakításra kerül az elektromos autó töltő előkészítése, továbbá a ház alkalmas napelem- és napkollektor rendszer telepítésére is. Közművek A közműellátás a villany rendelkezésre állásával biztosított. Az ivóvíz fúrt kút és időszakosan feltöltendő víztároló segítségével megoldott, míg a szennyvízelvezetést egy 35 köbméteres derítő szolgálja. Árazás Az eladási ár magában foglalja a megadott listából választható hideg-meleg burkolatokat, az alapszereléseket, valamint a tereprendezést is. Az ingatlan a szerződéskötéstől számítva 6-9 hónapon belül kulcsrakész állapotban birtokba vehető. Kulcsrakész eladási irányár: 75 M Ft A HIRDETÉSBEN SZEREPLŐ FÉNYKÉPEK EGY MÁR FELÉPÜLT HÁZRÓL KÉSZÜLTEK, REFERENCIAKÉNT SZOLGÁLNAK. A FÉNYKÉPEKEN LÁTHATÓ KERÍTÉST-TÁMFALAT AZ ÁR NEM TARTALMAZZA. Ha felkeltette érdeklődését, hívjon bizalommal, (hétvégén is) éljen ingyenes, személyre szabott hitelügyintézés szolgáltatásunkkal. Segítünk továbbá adásvételhez szükséges ügyvédi közreműködésben, energetikai tanúsítvány, valamint értékbecslés elkészítésében. For English information please send a message.
https://ingatlanok.hu/elado/haz/csor/75-millio-ft;93-negyzetmeter;3-szoba;geotermikus-futes/11581179