Az értékesítő:
Lukovics Zsolt
+36 20 993 7445

Eladó lakás Debrecen, 61 900 000 Ft, 62 négyzetméter

61 900 000 Ft
lakás, 62 négyzetméter
Építőanyag:
Panel
Egész szobák:
2
Komfort fokozat:
Összkomfort
Ingatlan állapota:
Kitűnő
Azonosító:
11581312
Értékesítés típusa:
eladó
Ingatlan típusa:
lakás
Település:
Debrecen
Alapterület:
62
Ár:
61 900 000 Ft
Emelet:
2. emelet
Fűtés jellege:
Központi (egyedi mérővel)
Kilátás:
utcai
Erkély:
Van
Tároló:
Van
Klíma:
Van
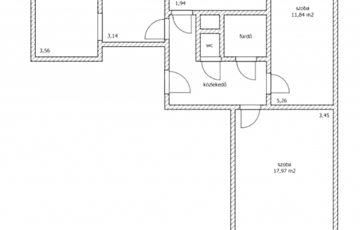
Debrecen egyik legkedveltebb, Belvároshoz közeli részén, a Hortobágy utcában kínálok eladásra egy 62 m²-es, 2. emeleti, kiváló állapotú panel lakást egy rendezett, 4 emeletes társasházban. A környék csendes, mégis minden percek alatt elérhető: villamos, boltok, iskolák, orvosi rendelő – ideális választás mind saját célra, mind befektetésnek! A lakás főbb előnyei Nappali + 2 félszoba – jól alakítható, praktikus elosztás Külön étkezős konyha Külön fürdő és WC 3 m²-es erkély – kellemes keleti fekvéssel Klímás (hűtő–fűtő) – egész éves kényelem Egyedileg mért távhő – kedvező fenntartási költségek Teljeskörűen felújított – költözhető állapot, igényes kivitelezéssel Második emelet – kényelmes, gyors megközelítés A lakás remek választás lehet fiatal pároknak, családoknak, egyetemistáknak vagy befektetőknek is, hiszen a környék népszerűsége, infrastruktúrája és megközelíthetősége garantálja a hosszú távú értékállóságot. További információ Megtekintésért vagy részletes tájékoztatásért kérem, keressen bizalommal!
https://ingatlanok.hu/elado/lakas/debrecen/62-millio-ft;62-negyzetmeter;4-szoba;panel-epitesu/11581312