Az értékesítő:
Béndek Péter
+36 20 420 8120

Eladó lakás Balatonalmádi, 154 900 000 Ft, 110 négyzetméter

154 900 000 Ft
lakás, 110 négyzetméter
Építőanyag:
Tégla
Egész szobák:
4
Ingatlan állapota:
Azonosító:
11581381
Értékesítés típusa:
eladó
Ingatlan típusa:
lakás
Település:
Balatonalmádi
Alapterület:
110
Ár:
154 900 000 Ft
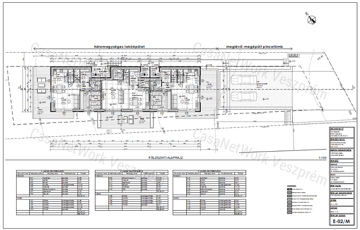
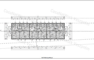
<p><strong>Veszprémi CASANETWORK iroda ELADÁSRA KÍNÁLJA A 2435-ES SZÁMÚ ÚJ ÉPÍTÉSŰ lakását Balatonalmádiban.</strong><br /></p><p>A Balatonra részbeni panorámával rendelkező, Balatonalmádi belterületén, a vörösberényi részen eladásra kínálom az új építésű  háromlakásos társasház téglalakásait. A lakásokhoz látványtervek készültek. A jóváhagyott kivitelezési dokumentáció alapján a földszint + tetőteres kialakítású lakások impozáns megjelenésűek és családi környezetbe illő kialakítással várják az új tulajdonosokat.</p><p>A terveken látható két szélső lakás alaprajzi elrendezése ugyanaz, míg a középső lakás a nappali növelése céljából 1 hálószobával kevesebbel rendelkezik.Ez a hirdetés az 1,-es lakás.</p><p>Mindegyik lakáshoz tartozik átlag 35 m<sup>2</sup> terasz, illetve a két szélső lakáshoz nagyobb kertterület is  300 m<sup>2</sup> és 65 m<sup>2</sup> méretekben.</p><p>A lakásokra vonatkozó főbb műszaki paraméterek az alábbiak:</p><p>- min. "A+" energetikai besorolással,</p><p>- 38 cm-es kerámia (porotherm, leiertherm) falazat, 12 cm-es grafitos hőszigeteléssel,</p><p>- válaszfalak szintén kerámia falazattal építve,</p><p>- fűtés és meleg vízellátás levegő-víz hőszivattyúval, padló-, és mennyezet fűtéssel/hűtéssel,</p><p>- műanyag külső nyílászárók 3 rétegű üvegezéssel,</p><p>- monolit vasbeton födémmel,</p><p>- teraszra kivezető ajtók elhúzós kivitelben készülnek.</p><p>- a lakásokhoz felszíni beállók tartoznak.</p><p>Az új tulajdonos által kiválasztott burkolatokkal, szerelvényekkel és szaniterekkel kerül kivitelezésre a ház.</p><p>A<strong>mennyiben a VESZPRÉMI CASANETWORK IRODA által kínált 2435. számú INGATLAN felkeltette érdeklődését, kérem hívjon a megadott telefonszámon.</strong></p><p><strong>Irodánk az ingatlan vásárlással összefüggő teljes körű ügyvédi, illetve díjmentes, bank semleges hitel-ügyintézéssel áll rendelkezésére.<br /></strong></p><p><strong>CasaNetwork - A civilizált ingatlanértékesítés artériája</strong></p><br />
https://ingatlanok.hu/elado/lakas/balatonalmadi/155-millio-ft;110-negyzetmeter;5-szoba;tegla-epitesu/11581381