Az értékesítő:
Rákosné Tímea
+36 70 412 5026

Eladó családi ház Hajdúsámson, 79 900 000 Ft, 95 négyzetméter

79 900 000 Ft
családi ház, 95 négyzetméter
Egész szobák:
4
Ingatlan állapota:
Kitűnő
Azonosító:
11581628
Értékesítés típusa:
eladó
Ingatlan típusa:
családi ház
Jelleg:
Családi ház
Település:
Hajdúsámson
Alapterület:
95
Telekterület:
485
Ár:
79 900 000 Ft
Terasz:
Nincs
Erkély:
Van
Melléképület:
Nincs
Pince:
Nincs
Parketta:
Nincs
Kábel TV:
Nincs
Telekterület típusa:
négyzetméter
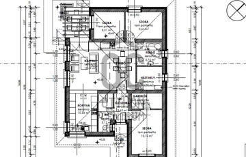
Hajdúsámson új lakóparkjában újabb családi házak foglalhatóak! Az építési övezet jellemzői: -Lke-3 kertvárosias lakózóna -oldalhatáron álló beépítettség van -beépítése max 30%, zöldfelület min. 50% -építménymagasság: 5 m -előkert és oldalkert mérete: 5 m Az ingatlanokra vonatkozó adatok: * telek mérete: 484 m2, a hirdetési ár tartalmazza a telekhányad árát, mely 7,5 M Ft * beépített alapterület: 26,42 % ingatlanonként pedig 128,047 m2 * 30-as téglafalazat 15 cm AUSTROTHERM hőszigeteléssel * a lakótér területe: 95 m2 * 3 szoba + nappalis elosztású * nyílásszárók 3 rétegű műanyag nyílászárók fehér színben * fűtés és melegvíz ellátás víz-levegő hőszivattyú * osztatlan közös területen található (teljes telek méret 970 m2) * az ár tartalmazza a térkövezést ill. körbe kerítést, * víz van az utcában jelenlegi helyzet miatt átadás fúrt kúttal történik vízszűrő berendezéssel, vízóra akna kiépítésre került * csatorna van telken belül, azonban jelenleg csatlakozási lehetőség nincs * gáz nincs * áram van Tervezett átadás: 2026. dec.31 Az épület jelenleg alapozásnál tart! Az ingatlanra Csok+, piaci hitel és babaváró támogatás felhsználható! Az ingatlan tulajdoni lap szerint külterület ezért az Otthon Start hitel feltételeinek nem felel meg! Egyeztetés telefonon, megtekintés előre egyeztetett időpontban lehetséges!
https://ingatlanok.hu/elado/haz/hajdusamson/80-millio-ft;95-negyzetmeter;4-szoba;nincs-megadva-futes/11581628