Az értékesítő:
Várszegi Tamás
+36 20 428 4477

Eladó lakás Győr, 53 750 000 Ft, 65 négyzetméter

53 750 000 Ft
lakás, 65 négyzetméter
Egész szobák:
3
Ingatlan állapota:
Átlagos
Azonosító:
11582334
Értékesítés típusa:
eladó
Ingatlan típusa:
lakás
Település:
Győr
Alapterület:
65
Ár:
53 750 000 Ft
Emelet:
1. emelet
Fűtés jellege:
Cirkó
Építési év:
Új építésű
Erkély:
Nincs
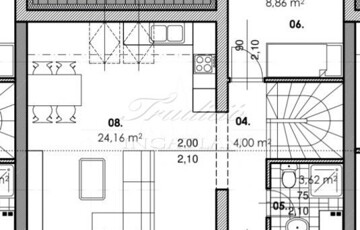
Győr családi házas övezetében Győrszentiván frekventált részén, 1241 m2-es két utcafrontos telken, a mai kor műszaki-energetikai követelményeinek és trendeknek megfelelően felépülő 5 lakásos sorház, nettó 65 m2-es belső két szintes lakása eladó. Az ár fűtéskész állapotra vonatkozik, és tartalmazza a telekhányadot, valamint az 5% ÁFÁ-t. Várható átadás 2026 II. negyedév, a kulcsrakész befejezés kb. 2026 IV. negyedév. Kulcsrakész vételár: 58,5 MFt Elosztása a következő: Földszint: előtér 4,9 m2, közlekedő 7,8 m2, wc 1,9 m2 Emelet: amerikai konyhás nappali 24,16 m2, hálószoba 10,35 m2, hálószoba 8,86 m2, zuhanyzó 3,62 m2, közlekedő 4 m2 Az épület modern, mégis a környezethez illeszkedő formavilággal készül, jól átgondolt és praktikus alaprajzokkal. A homlokzatok tervezésénél kiemelt figyelmet kapott a természetes fény maximalizálása. Műszaki tartalom: főfalak: Porotherm N+F 30 tégla válaszfalak: Porotherm 10 N+F tégla 6 légkamrás, szürke Kömmerling műanyag nyílászárók, 3 rétegű üvegezéssel redőny előkészítés homlokzat: 15 cm BAUMIT grafitos polisztirol hőszigetelés tető: antracit színű beton cserép szintek között monolit vasbeton födém fűtés és meleg víz: 24 kW-os kondenzációs kombi gázkazán, radiátorral vagy padlófűtéssel vasbeton szerkezetű lépcső Az udvaron térkövezett gépkocsibeállókat alakítanak ki, melyek 1 M Ft/db áron megvásárolhatók. Győrszentiván az AUDI gyár közvetlen közelében található, az 1-es főút és az M1 autópálya pár perces távolságban van. A 1241 m²-es, két utcáról megközelíthető telken külön bejáratos 5 lakás és egy üzlethelyiség épül, valamint a másik utcafrontról egy önálló családi ház is kialakításra kerül. A TRADÍCIÓ INGATLANIRODA AZ ALÁBBI SZOLGÁLTATÁSOKKAL ÁLL AZ ÜGYFELEK RENDELKEZÉSÉRE: - LAKOSSÁGI ÉS IPARI INGATLANOK ÉRTÉKESÍTÉSE ÉS BÉRBEADÁSA - DÍJMENTES PÉNZÜGYI TANÁCSADÁS, HITELÜGYINTÉZÉS, LAKÁSHITELEK, ÁLLAMI TÁMOGATÁSOK / CSOK, ÁFA / , BABAVÁRÓ HITEL, SZEMÉLYI KÖLCSÖN, LAKÁSTAKARÉK, BIZTOSÍTÁS - JOGI HÁTTÉR, ADÁSVÉTELI SZERZŐDÉSEK KÉSZÍTÉSE KEDVEZŐ FELTÉTELEKKEL - ENERGETIKAI TANÚSÍTVÁNY KÉSZÍTÉSE - INGATLAN ÉRTÉKBECSLÉS AMENNYIBEN GYŐRI, ILL. GYŐR KÖRNYÉKI, ELADÓ VAGY KIADÓ INGATLANNAL RENDELKEZIK, KÉREM HÍVJON!
https://ingatlanok.hu/elado/lakas/gyor/54-millio-ft;65-negyzetmeter;3-szoba;nincs-megadva-epitesu/11582334