Az értékesítő:
Borosné Hajnalka
+36 70 649 7985

Eladó családi ház Kecskemét, 89 900 000 Ft, 129 négyzetméter

89 900 000 Ft
családi ház, 129 négyzetméter
Építőanyag:
Tégla
Egész szobák:
5
Ingatlan állapota:
Épülő
Azonosító:
11582905
Értékesítés típusa:
eladó
Ingatlan típusa:
családi ház
Jelleg:
Családi ház
Település:
Kecskemét
Alapterület:
129
Telekterület:
494
Ár:
89 900 000 Ft
Szintek száma:
Földszintes
Fűtés jellege:
Egyéb
Kor:
Új építésű
Telekterület típusa:
négyzetméter
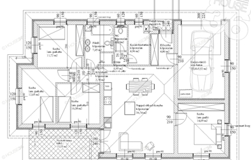
Kecskemét-Kadafalván, jól megközelíthető helyen, nettó 129,18 nm-es, 4 szoba+nappalis, igényes, új építésű családi ház, garázzsal, 494 nm-es telken ELADÓ! Elhelyezkedését tekintve csendes, nyugodt környezetben található. Földszintes kialakítású családi ház, nettó 129,18 nm hasznos lakótérrel, +13,33 nm terasszal, valamint egybeállós garázzsal. A házban található 4 teljes értékű hálószoba, 1 fürdőszoba, 1 vendég mosdó, konyha-étkező, nappali, 1 gépészeti/háztartási helyiség. -minőségi, 6 légkamrás Galean műanyag nyílászárók, 3 rétegű hővédő üvegezéssel -elektromos redőnyök -Panasonic hőszivattyú hűtésre/ fűtésre -padlófűtés -4 kW napelem -PTH 30 NF Rapid+ 12 cm grafitos hőszigetelés, nemesvakolat -hideg - meleg burkolatok 5000.-/ m2 -szaniterek 600.000 forintig az árba -elektromos autótöltő kiállás Céges építkezés, CSOK Plusz igénybe vehető. Várható átadás szerződéskötéstől számított 10-12 hónap Vételár: 99.000.000 Ft Az ár kulcsrakész állapotban történő átadással, telek árral és az 5%-os Áfa-val együtt értendő. Konyha- és fürdőszobabútort, valamint lámpatesteket a vételár nem tartalmazza! Bővebb felvilágosítás a megadott telefonszámon kérhető. Az iroda legfrissebb, aktuális kínálatát a HOUSE36 saját weboldalán találja!
https://ingatlanok.hu/elado/haz/kecskemet/90-millio-ft;129-negyzetmeter;5-szoba;egyeb-futes/11582905