Az értékesítő:
Eckert Eleonóra
+36 30 140 3328

Eladó családi ház Veszprém, 80 000 000 Ft, 112 négyzetméter

80 000 000 Ft
családi ház, 112 négyzetméter
Egész szobák:
3
Komfort fokozat:
Összkomfort
Ingatlan állapota:
Kitűnő
Azonosító:
11583594
Értékesítés típusa:
eladó
Ingatlan típusa:
családi ház
Jelleg:
Családi ház
Település:
Veszprém
Alapterület:
112
Ár:
80 000 000 Ft
Kor:
Új építésű
Telekterület típusa:
négyzetméter
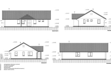
Új építésű családi ház generál kivitelezése Veszprém és 25 km-es vonzáskörzetében - az ár a családi ház kivitelezését foglalja magába, az építési telket nem - az építményhez legalább 500 m2 telek ajánlott - tervezés és ár a kivitelezővel való megegyezés szerint   - energetikei besorolása : BB  - falazat: 30-as blokktégla - szigetelés: 30cm mennyezetben, 20cm oldalfalon, 10 cm padlóban  - fűtés: elektromos kazán (9kW) és napelem, vagy levegő-víz hőszivattyús fűtési rendszer, igény esetén hűtő-fűtő rendszer - napelem: 7,65kW mely éves betermelés a hálózatra 7500-9500kW 37Ft/kW-al számolva 300.000-380.000Ft - hő visszanyerős szellőztető rendszer - nyílászáró: 3 réteg üveggel, hőáteresztés: 0,6 W/m2 K - az épület hővesztesége: 4,5kw - a fal hőáteresztési tényezője: 0,14 W/m2 K - rezsi kb. 5000 Ft/hó/fő (víz,villany,fűtés,hűtés) - változtatni a kivitelezővel való megegyezés után lehetséges - építési határidő: egyeztetés a generál kivitelezővel - CSOK igénybe vehető Amennyiben felkeltettem az érdeklődését kérem hívjon! 06 30 140 3328 Dream-Ing, Álomból Otthont!
https://ingatlanok.hu/elado/haz/veszprem/80-millio-ft;112-negyzetmeter;6-szoba;nincs-megadva-futes/11583594