Az értékesítő:
Szaszala Zsolt
+36 70 469 3681

Eladó lakás Debrecen, 55 990 000 Ft, 42 négyzetméter

55 990 000 Ft
lakás, 42 négyzetméter
Építőanyag:
Tégla
Egész szobák:
2
Ingatlan állapota:
Kitűnő
Azonosító:
11584403
Értékesítés típusa:
eladó
Ingatlan típusa:
lakás
Település:
Debrecen
Alapterület:
42
Ár:
55 990 000 Ft
Emelet:
Földszint
Kilátás:
udvari
Erkély:
Nincs
Kertkapcsolat:
Nincs
Kocsibeálló:
Nincs
Tároló:
Nincs
Lift:
Nincs
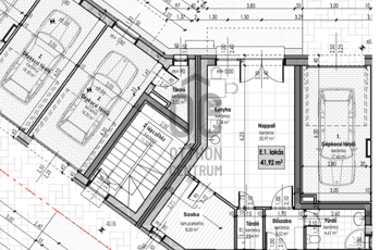
Projekt bemutatása Debrecen – Hatvan utcai kert Modern, energiahatékony újépítésű lakások eladók – már csak 3 lakás leköthető! Debrecen nyugati, kertvárosias részén, a Hatvan utcai kertben épül a 3 ütemes, 21 lakásos modern társasház következő épülete. A 3. ütemből már csak 3 lakás elérhető! Lakások 41,9–81,8 m² alapterület minden lakáshoz erkély/terasz földszinti lakások saját kerttel, a hirdetési ár nem tartalmazza a kert árát. ideális első otthonnak, családoknak vagy befektetésnek Műszaki tartalom AA+ energetikai besorolás hőszivattyús mennyezetfűtés–hűtés + padlófűtés Porotherm 30 N+F tégla 15 cm grafitos hőszigetelés 3 rétegű, argon töltésű nyílászárók alacsony rezsiköltség Burkolatok hidegburkolat: 9 000 Ft/m² melegburkolat: 5 000 Ft/m² Konyhabútor nincs az árban. Az ár kulcsrakész állapotra vonatkozik. Garázsok A földszinten 21 db, 18 m²-es garázs épül Irányár: 14 M Ft Lokáció csendes, kertvárosias környezet gyors belvárosi megközelítés kiváló infrastruktúra hosszú távon értékálló környék Építkezés és átadás építkezés kezdete: várhatóan 2026 január műszaki átadás: 2026. III–IV. negyedév Finanszírozás készpénz hitel CSOK igényelhető Már csak 3 lakás maradt – gyorsan fogynak a helyek! További információért, alaprajzokért vagy egyeztetésért várom hívását!
https://ingatlanok.hu/elado/lakas/debrecen/56-millio-ft;42-negyzetmeter;2-szoba;tegla-epitesu/11584403