Az értékesítő:
Kókai Ferenc
+36 70 422 9777

Eladó családi ház Szeged, 89 900 000 Ft, 140 négyzetméter

89 900 000 Ft
családi ház, 140 négyzetméter
Építőanyag:
Tégla
Egész szobák:
6
Ingatlan állapota:
Szerkezetkész
Azonosító:
11584667
Értékesítés típusa:
eladó
Ingatlan típusa:
családi ház
Jelleg:
Családi ház
Település:
Szeged
Alapterület:
140
Telekterület:
800
Ár:
89 900 000 Ft
Fűtés jellege:
Hőszivattyú
Terasz:
Van
Erkély:
Van
Erkély mérete:
25.00 m2
Beépíthető tetőtér:
Nincs
Melléképület:
Nincs
Pince:
Nincs
Klíma:
Van
Telekterület típusa:
négyzetméter
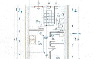
Szeged Subasa városrészben Eladó egy most induló, TÉGLA építésű, 140 nm-es élettérrel rendelkező, nappali plusz négy - öt szobás ház, amelyhez igény szerint terasz, vagy medence is járhat (ez külön megállapodás lehet az eladóval), mindenezek mellett egy 800 nm - es telek is jár hozzá. A látványtervek folyamatban vannak. A feltűntetett ár Szerkezetkész ár, az építtető vállalja a kulcsrakész befejezést is. Kulcsrakész ára 109.900.000 Ft Várható kulcsrakész befejezés, kezdéstől számított 7-8 hónap. Az ingatlanra CSOK plusz, otthon start, és más hiteltámogatás is igénybe vehető. A ház 1 db óriási amerikai konyhás nappalival, 5 db hálószobával, 2 db fürdőszobával, közlekedővel, terasszal rendelkezik. Az ingatlan elhelyezkedésre, kialakítása miatt, maximálisan kiemeli ezt az ingatlant az átlagos lakások sorából és egyedülálló választássá teszi azt. További előny. hogy ház hőszivattyús helyiségenkénti Fan coilos hűtő - Fűtő rendszerrel lesz felszerelve. Fontos tény, hogy teljesen hétköznapi használat mellett is a rezsicsökkentés értékhatárai alatti a fogyasztás, így a rezsiköltség rendkívül alacsony. A lakás délkeleti fekvésű, napfényes ingatlan. A környék infrastruktúrája tökéletes, tömegközlekedés, 1 - 3 percnyire az ingatlantól. Helyiségei: - amerikai konyhás nappali - 4-5 szoba - dupla fürdő - wc - közlekedő, előtér - terasz Az ingatlan megtekintése rugalmas. Teljes totál műszaki tartalomért, illetve megtekintésért hívjon bármikor bizalommal. Várom megtisztelő hívását: KÓKAI FERENC Ving +36 70 422 9777 Prémium ingatlanértékesítő Szeged (További képekért és információkért kérem hívjon!)
https://ingatlanok.hu/elado/haz/szeged/90-millio-ft;140-negyzetmeter;6-szoba;hoszivattyu-futes/11584667