Az értékesítő:
Szaszala Zsolt
+36 70 469 3681

Eladó családi ház Debrecen, Belváros, 199 000 000 Ft, 150 négyzetméter

199 000 000 Ft
családi ház, 150 négyzetméter
Egész szobák:
4
Ingatlan állapota:
Kitűnő
Azonosító:
11584840
Értékesítés típusa:
eladó
Ingatlan típusa:
családi ház
Jelleg:
Ikerház
Település:
Debrecen
Alapterület:
150
Telekterület:
235
Ár:
199 000 000 Ft
Terasz:
Nincs
Erkély:
Van
Melléképület:
Nincs
Pince:
Nincs
Parketta:
Nincs
Kábel TV:
Nincs
Telekterület típusa:
négyzetméter
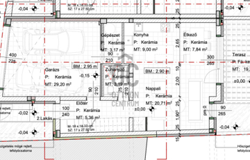
PRÉMIUM BELVÁROSI ÉLETTÉR – LUXUS IKERHÁZ DEBRECENBEN! Debrecen egyik legcsendesebb, mégis abszolút belvárosi utcájában, kínálunk megvételre egy 170 m²-es, új építésű, prémium kategóriás ikerházat, DUPLA GARÁZZSAL. Ez az ingatlan azoknak szól, akik nem kompromisszumot keresnek, hanem minőséget és nyugalmat a város szívében. -Az ár kulcsrakész állapotra vonatkozik. -A jelenlegi 90%-os készültség lehetőséget ad a végső részletek személyre szabására. Életstílus, nem csak ingatlan! Ez a ház ideális választás azoknak, akik: a belváros közelségét szeretnék élvezni de nem akarnak lemondani a csendről és privát élettérről fontos számukra a minőség, design és modern technológia. - Ritka kombináció: városi élet + kert + nyugalom + prémium kivitelezés Kinek szól valójában? Felsővezetőknek, vállalkozóknak Akik értékelik az időt, a kényelmet és a reprezentatív környezetet. Orvosoknak, ügyvédeknek, értelmiségi rétegnek Akik számára a lokáció presztízst, a környezet pedig nyugalmat jelent. Családoknak, akik szintet lépnének Ahol a gyerekeknek tér jut, a szülőknek pedig valódi élettér. Terek, amik élhetőek tágas nappali–étkező–konyha – a mindennapi élet központja 3 külön nyíló hálószoba – privát életterek 3 fürdőszoba – kompromisszummentes kényelem gardrób + háztartási helyiség dupla garázs közvetlen bejutással - A jelenlegi állapot lehetőséget ad arra, hogy nem egy kész sablont kap, hanem saját otthont hoz létre. Technológia, ami a komfortot szolgálja Daikin hőszivattyús rendszer teljes felületen padlófűtés klimatizált helyiségek elektromos alumínium okos redőnyök vízlágyító rendszer komplett riasztó- és kamerarendszer kamerás kaputelefon Külső terek parkosított kert automata öntözőrendszer robotfűnyíró előkészítés - Minimális ráfordítás, maximális komfort. Mi teszi igazán értékessé? Belvárosi elhelyezkedés, mégis csend új építés, prémium műszaki tartalom kulcsrakész ár – tervezhető költségek még személyre szabható hosszú távon is értékálló ingatlan Befektetőknek A lokáció és a műszaki tartalom miatt kiemelkedő értékállóság, prémium bérlői kör, hosszú távon stabil hozam. Összegzés Ez az ingatlan nem azoknak szól, akik csak “lakást keresnek”. Ez azoknak szól, akik tudják, mit jelent a minőségi élettér. Ha Ön is ebbe a körbe tartozik, hívjon bizalommal és nézze meg személyesen. Az ilyen ingatlanok nem sokáig maradnak a piacon.
https://ingatlanok.hu/elado/haz/debrecen/199-millio-ft;150-negyzetmeter;4-szoba;nincs-megadva-futes/11584840