Az értékesítő:
Szabó Szilvia
+36 70 367 7636

Eladó lakás Tata, 66 500 000 Ft, 67 négyzetméter

66 500 000 Ft
lakás, 67 négyzetméter
Egész szobák:
3
Ingatlan állapota:
Azonosító:
11584862
Értékesítés típusa:
eladó
Ingatlan típusa:
lakás
Település:
Tata
Alapterület:
67
Ár:
66 500 000 Ft
Emelet:
1. emelet
Fűtés jellege:
Egyéb
Építési év:
Új építésű
Erkély:
Nincs
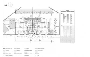
ÚJ ÉPÍTÉSŰ, ENERGIATAKARÉKOS OTTHONOK TATÁN – SAJÁT KERTTEL, AUTÓBEÁLLÓVAL! Korszerű, alacsony rezsijű, környezettudatos sorházi otthonok várják új tulajdonosukat Tata csendes, kertvárosias részén, pár percre az M1-es autópályától! A projekt célja egy olyan élhető, kényelmes, családbarát otthon megteremtése, amely a mai energiatudatos elvárásoknak megfelelően, hőszivattyús fűtéssel, modern építőanyagokkal és minőségi kivitelezéssel készül – mindezt elérhető áron. ✔ Megújuló energiás fűtés – alacsony fenntartási költségek ✔ 2 szintes kialakítás, tágas belső terekkel ✔ Saját kertkapcsolat mindkét lakás esetében ✔ 2 hálószoba + nappali, ideális otthon pároknak, vagy kisebb családoknak ✔ Letisztult, modern építészeti megoldások ✔ Saját parkoló vásárolható Átgondolt elosztás, élhető terek A lakások tervezése során a cél a komfort és funkcionalitás optimális egyensúlya volt. A földszinten tágas, egybenyitott nappali–konyha–étkező funkcionál közösségi térként, míg az emelet a család privát zónája 2 különálló szobával és fürdővel. Az alaprajzokon jól látható, hogy mindkét lakásban: • nagy nappali (~18 m²) • étkező–konyha (~10 m²) • 2 hálószoba (8–10 m²) • tároló, WC, előtér került kialakításra. Fedett bejárati előtér, autóbeálló és saját kertkapcsolat teszi komfortossá a mindennapokat. Lakások paraméterei és árak 1. lakás • 65 m² lakótér • cca. 130 m² saját kert • nappali + 2 hálószoba • Vételár: 64.700.000 Ft (5% ÁFÁ-val) • autóbeálló: 1.500.000 Ft 2. lakás • 67 m² lakótér • cca. 130 m² saját kert • nappali + 2 hálószoba • Vételár: 66.500.000 Ft (5% ÁFÁ-val) • autóbeálló: 1.500.000 Ft Modern homlokzat, esztétikus építészeti megoldások – a látványterveken is jól megfigyelhető. Korszerű gépészet – alacsony energiafelhasználás A fűtést és melegvíz-ellátást levegős hőszivattyús rendszer biztosítja, lakásonként önálló egységekkel. Az épületben helyet kapott: • hőszivattyú beltéri és kültéri egységek • puffer tartály • gépi szellőzés bizonyos helyiségekben Műszaki átadás: 2026.12.30 Lakhatás támogatások – nálunk mindent elintézhet! ✔ CSOK PLUSZ 3% ✔ OTTHON START 3% ✔ Illetékmentesség ✔ Teljes körű, INGYENES hitel-ügyintézés ✔ Szerződés előkészítés ✔ Bankfüggetlen tanácsadás Minden egy helyen, az Ön kényelme érdekében. Kinek ajánljuk? • pároknak • kiscsaládosoknak • azoknak, akik költséghatékony, modern, zöld otthont keresnek • akik szeretnének kertet, de nem nagy fenntartású ingatlant Ez a projekt valódi alternatíva a társasházi lakások és a magas fenntartású családi házak között! Ne maradjon le – most még választhat burkolatot, szanitert, belső kialakítást! Kérjen részletes információt, műszaki tartalmat, alaprajzot, látványtervet. Szabó Szilvia Tel.: 06 70 367 76 36
https://ingatlanok.hu/elado/lakas/tata/67-millio-ft;67-negyzetmeter;3-szoba;nincs-megadva-epitesu/11584862