Az értékesítő:
Successo Vendita Kft.
+36 70 510 4387

Kiadó iroda/üzlethelyiség Budapest XIV. ker, 1 356 600 Ft/hónap, 357 négyzetméter

1 356 600 Ft/hónap
iroda/üzlethelyiség, 357 négyzetméter
Azonosító:
11585030
Értékesítés típusa:
kiadó
Ingatlan típusa:
iroda/üzlethelyiség
Jelleg:
Iroda
Település:
Budapest XIV. ker
Alapterület:
357
Ár:
1 356 600 Ft/hónap
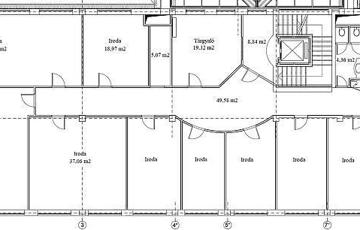
FOGARASI ÚTON, FREKVENTÁLT RÉSZEN, 24 H PORTA SZOLGÁLATTAL, 2 DB PARKOLÓVAL! XIV. Kerület központi részén, BKV-val és személygépjárművel egyaránt könnyedén megközelíthető modern irodaház teljes 357 m2-es második emelete keresi hosszútávra új bérlőjét. Az irodaház a sorompóval zárt parkolóból és utcafrontról is megközelíthető, kártyás beléptető rendszerrel működtetett. Az iroda szintet üvegliften és lépcsőn keresztül érjük el , az épület saját recepcióval és kamerarendszerrel felszerelt. Jelenleg a szinten 11 külön,- a folyosóról nyíló iroda,- 1 db 12 fős befogadóképességű tárgyaló,- férfi és női mosdó és teakonyha található. A felszíni parkolóban 2 db autóbeálló tartozik hozzájuk, igény esetén további parkolóhelyek bérelhetőek. A házon belül a tágas konferenciaterem térítésmentesen használható rendezvények, megbeszélések, oktatások lebonyolítására. Megközelítés: 80-a trolival és 130-as busszal. M2 jelzésű metróval a Stadionok megállótól 7 perc sétára található. A bérleti díj: 9,5 euró/ m2 Üzemeltetési díj: 7 euró/ m2 További információkért az alább megadott telefonszámon keressen bizalommal! Bérlőink számára a közvetítés díjtalan.
https://ingatlanok.hu/kiado/iroda/budapest-xiv-ker/1-millio-ft;357-negyzetmeter;iroda-jellegu;nincs-megadva-berendezett/11585030