Az értékesítő:
Vede Casa Kft.
+36 30 109 6915

Eladó családi ház Göd, 119 900 000 Ft, 112 négyzetméter

119 900 000 Ft
családi ház, 112 négyzetméter
Egész szobák:
4
Ingatlan állapota:
Épülő
Azonosító:
11585103
Értékesítés típusa:
eladó
Ingatlan típusa:
családi ház
Jelleg:
Családi ház
Település:
Göd
Alapterület:
112
Telekterület:
320
Ár:
119 900 000 Ft
Szintek száma:
1 szint
Fűtés jellege:
Egyéb
Telekterület típusa:
négyzetméter
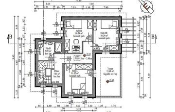
Alsógöd kedvelt, nyugodt részén kínálunk eladásra egy minőségi anyagokból épülő, modern stílusú, önálló családi házat 320 nm-es telekkel. Az ingatlan 30-as Porotherm téglából épül, 12 cm-es hőszigeteléssel. A fűtésről korszerű hőszivattyús rendszer gondoskodik, padlófűtéssel a teljes házban. A kivitelezés során háromrétegű műanyag thermo nyílászárók kerülnek beépítésre. A tervek szerint garázs is tartozik az épülethez, de igény esetén ez akár plusz szobává is átalakítható, így még jobban az Ön igényeihez szabható a végső kialakítás. A burkolatok és szaniterek igény szerint választhatók, így lehetőség van arra, hogy a leendő tulajdonos saját ízlésére formálja az otthonát. Vasútállomás, iskola, óvoda illetve a boltok is 15 perc sétával elérhetőek. További kérdéseivel, illetve megtekintési szándékával kérem keresse irodánkat. A hirdetésben szereplő adatok tájékoztató jellegűek.
https://ingatlanok.hu/elado/haz/god/120-millio-ft;112-negyzetmeter;4-szoba;egyeb-futes/11585103