Az értékesítő:
Imobiliare Kft.
+36 70 398 8754

Eladó családi ház Budapest XV. ker, 139 900 000 Ft, 185 négyzetméter

139 900 000 Ft
családi ház, 185 négyzetméter
Egész szobák:
7
Ingatlan állapota:
Azonosító:
11585129
Értékesítés típusa:
eladó
Ingatlan típusa:
családi ház
Jelleg:
Családi ház
Település:
Budapest XV. ker
Alapterület:
185
Telekterület:
643
Ár:
139 900 000 Ft
Szintek száma:
1 szint
Fűtés jellege:
Egyedi
Telekterület típusa:
négyzetméter
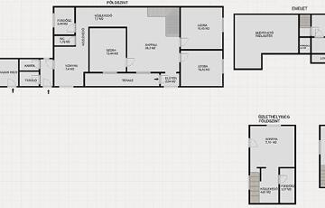
XV. KERÜLETBEN: FREKVENTÁLT RÉSZEN, ELADÓ EGY JÓ ÁLLAPOTÚ, 185 M2 (144 M2 HÁZ+41 M2 ÜZLETHELYISÉG), 7 SZOBÁS, DUPLAKOMFORTOS, TÖBB GENERÁCIÓ SZÁMÁRA IS IDEÁLIS CSALÁDI HÁZ, 643 M2 TELEKKEL, AUTÓBEÁLLÓVAL, GARÁZZSAL. A HÁZ JELLEMZŐI: A ház egy része az 1940-es években épült, de 1989-ben teljesen át lett építve, fel lett újítva esztétikailag és műszakilag is. Az épület betonalappal rendelkezik, a homlokzat 5 cm-es szigeteléssel van ellátva (kivéve az utcafronton), a födém 15 cm-es kőzetgyapottal szigetelt. A földszinti részen, konyha, nappali, 3 szoba, kamra, fürdőszoba, előszoba, mellékhelyiség, közlekedő és terasz található, az emeleten 2 szoba, fürdőszoba és erkély kapott helyet. A tetőtér nincs teljesen beépítve. A fűtést gáz- és vegyes tüzelésű kazán biztosítja, lapradiátorokkal és egy hűtő-fűtő klíma is rendelkezésre áll. A nyílászárók fakeretes hőszigetelt ablakok. Az üzlethelyiség 41 m2, belső 2 szintes, 1 szobás, jelenleg lakásként funkcionál, de szeparálható így akár irodaként, üzletként is működhet. A telek szépen karban tartott, szerelő aknás garázs is kialakításra került, de több autóval is van lehetőség beállni. FINANSZÍROZÁS: Az ingatlan hitelre is megvásárolható. Bankfüggetlen tanácsadóink, az ország összes pénzintézete közül gyorsan és gördülékenyen találja meg az Önnek legmegfelelőbb konstrukciót, egyedi kedvezményekkel. A hitel közvetítés díjmentes. A hirdetésben szereplő adatok tájékoztatót jellegűek. Várjuk hívását munkanapokon 09:00-18:00 óra között. Amennyiben eladná saját ingatlanát, több mint 16 éve működő, kifejezetten a kerületre szakosodott irodánktól, INGYENES ÉRTÉKBECSLÉST kérhet.
https://ingatlanok.hu/elado/haz/budapest-xv-ker/140-millio-ft;185-negyzetmeter;7-szoba;egyedi-futes/11585129