Az értékesítő:
Prossima Casa Kft.
+36 20 262 5260

Eladó családi ház Szentendre, 145 000 000 Ft, 170 négyzetméter

145 000 000 Ft
családi ház, 170 négyzetméter
Egész szobák:
6
Ingatlan állapota:
Felújítandó
Azonosító:
11585287
Értékesítés típusa:
eladó
Ingatlan típusa:
családi ház
Jelleg:
Családi ház
Település:
Szentendre
Alapterület:
170
Telekterület:
618
Ár:
145 000 000 Ft
Szintek száma:
1 szint
Fűtés jellege:
Egyedi
Telekterület típusa:
négyzetméter
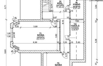
SZENTENDRÉN A BELVÁROSBAN ELADÓ EGY ÖNÁLLÓ CSALÁDI HÁZ! KÖRNYÉK: Szentendre gyönyörű belvárosában helyezkedik el a Fő tértől 16 perc sétára. A Duna korzó mindössze 14 perc sétával elérhető. A közelben számos étterem és bevásárlási lehetőség található. A legközelebbi buszmegálló 7 perc sétára található, ahonnan könnyen meglehet közelíteni a HÉV megállót. Egy központi, de mégis csendes, nyugodt helyen található. A HÁZ JELLEMZŐI: -A ház hasznos alapterülete: 170 nm -A ház akár több generációra is átalakítható. -A telek terület: 618 nm -Az ingatlan az 1990-es években épült POROTHERM téglából. -Nyílászárók kétrétegű műanyagból vannak. -Parkolási lehetőséget telken belül egy fedett kocsibeálló nyújt. -A fűtésért egy cirkó gázkazán felel. -Az ingatlan állapota igény szerint felújítandó. -A tetőt BRAMAC betoncserép fedi. FINANSZÍROZÁS: -Tehermentes, banki finanszírozással is megvásárolható, melyben irodánk ingyenes tanácsadással áll rendelkezésükre! VEVŐINK RÉSZÉRE A KÖZVETÍTÉS DÍJTALAN! A hirdetésben szereplő adatok tájékoztató jellegűek!
https://ingatlanok.hu/elado/haz/szentendre/145-millio-ft;170-negyzetmeter;6-szoba;egyedi-futes/11585287