Az értékesítő:
Biró Ramóna
+36 70 645 0457

Eladó lakás Kecskemét, 62 500 000 Ft, 49 négyzetméter

62 500 000 Ft
lakás, 49 négyzetméter
Építőanyag:
Tégla
Egész szobák:
1
Ingatlan állapota:
Épülő
Azonosító:
11586385
Értékesítés típusa:
eladó
Ingatlan típusa:
lakás
Település:
Kecskemét
Alapterület:
49
Ár:
62 500 000 Ft
Emelet:
1. emelet
Fűtés jellege:
Cirkó
Építési év:
Új építésű
Lift:
Van
Klíma:
Van
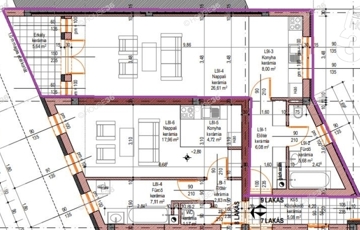
Kecskemét egyik ikonikus épülete végre újjászületik! Kecskemét belvárosának szélén, mégis pár percre a főtértől, kiváló közlekedés mellett, 27 lakásos liftes társasházban, zömében erkélyes, új lakások leköthetőek. Opcionálisan garázs és beálló vásárlási lehetőség. A társasház első emeletén, 46,37 m2 lakóterű, nappali + amerikai/konyhás lakás, 5,64 m2 erkéllyel megvásárolható. Várható átadás, 2026 december. 27 lakásos, 5 szintes, liftes épület. Gáz kombi kazán lakásonként Hűtő-fűtő klíma Műanyag 6 légkamrás 3 rétegű ablakok, rejtett redőnytokos redőnnyel felszerelve Beltéri ajtók 5 színben választhatók. Szobákban laminált parketta, egyéb helyiségekben vinyl illetve hidegburkolat. Fürdőszobai szaniterek beépítve műszaki tartalom szerint. Konyhabútor, fürdőszoba szekrény,előszoba fal opcionálisan rendelhető. További információkat és részletes műszaki tartalmat egy személyes találkozó keretein belül tudunk biztosítani. ​ A HOUSE36kínálatában található összes ingatlannal kapcsolatban tudok felvilágosítást nyújtani! Hívjon bizalommal! Szolgáltatásaink Kereső ügyfeleink számára INGYENESEK! Az iroda legfrissebb, aktuális kínálatát a HOUSE36 saját weboldalán találja!
https://ingatlanok.hu/elado/lakas/kecskemet/63-millio-ft;49-negyzetmeter;1-szoba;tegla-epitesu/11586385