Az értékesítő:
Bocskainé Gudmon Krisztina
+36 30 221 3336

Eladó családi ház Ócsa, 110 000 000 Ft, 126 négyzetméter

110 000 000 Ft
családi ház, 126 négyzetméter
Építőanyag:
Tégla
Egész szobák:
4
Komfort fokozat:
Összkomfort
Ingatlan állapota:
Azonosító:
11586924
Értékesítés típusa:
eladó
Ingatlan típusa:
családi ház
Jelleg:
Családi ház
Település:
Ócsa
Alapterület:
126
Telekterület:
719
Ár:
110 000 000 Ft
Fűtés jellege:
Cirkó
Telekterület típusa:
négyzetméter
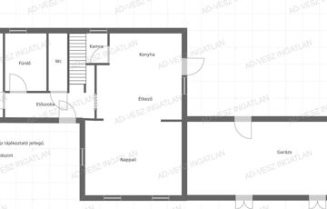
Kizárólag irodánk kínálatában!!!    Ócsán kínálunk eladásra egy 2 szintes, önálló családi házat.    Az ingatlan tehermentes,összkomfortos, hitelezhető, jogilag rendezett.  A 719m2-es telek összközműves, rendezett, a kert öntözését fúrt kút is segíti.  A parkolás szerelőaknás dupla garázzsal megoldott, mely 50m2-es.  A ház földszintjén tágas, világos nappali, konyha étkezővel, egy hálószoba, wc, fürdő, kamra, előszoba, és közlekedő lett kialakítva.  A tetőtérben további 2 hálószoba, fürdőszoba wc-vel, gardrób szoba, és közlekedő található.  Az épület 2000-ben épült beton alapra, tégla falazattal, 10cm-es szigeteléssel, beton födémmel, zsindely fedéssel.  2024-ben felújításra került, kicserélték a nyílászárókat redőnyös, szúnyoghálós, műanyag ablakokra, lecserélték a csaptelepeket, és korlátot építettek.  A ház biztonságáról távfelügyeletes riasztó rendszer gondoskodik.   A fűtés kondenzációs gáz cirkóról radiátorokkal történik, de klímák is segítenek az optimális hőmérséklet elérében.  Az ingatlan csendes utcában helyezkedik el, de a városközpont gyorsan megközelíthető, és a vonat, valamint a  buszmegálló is sétatávolságban van.  Ócsa fejlődő kisváros Budapest közelében, mely őrzi a vidéki élet hangulatát.    Ha egy kellemes kisvárosban képzeli el az életét, egy kényelmes, jó állapotú otthonban, hívjon!!!    Irodánk ingyenes hiteltanácsadással, profi ügyvédi támogatással várja. Ha a vásárláshoz még el kell adnia ingatlanát szívesen segítünk!   Bocskainé Krisztina 30-221-3336
https://ingatlanok.hu/elado/haz/ocsa/110-millio-ft;126-negyzetmeter;4-szoba;cirko-futes/11586924