Az értékesítő:
Csík Zsolt
+36 30 641 6167

Eladó lakás Kiskunlacháza, 32 450 000 Ft, 30 négyzetméter

32 450 000 Ft
lakás, 30 négyzetméter
Építőanyag:
Tégla
Egész szobák:
1
Komfort fokozat:
Összkomfort
Ingatlan állapota:
Kitűnő
Azonosító:
11587310
Értékesítés típusa:
eladó
Ingatlan típusa:
lakás
Település:
Kiskunlacháza
Alapterület:
30
Ár:
32 450 000 Ft
Tulajdonviszony:
Saját
Emelet:
Földszint
Fűtés jellege:
Hőszivattyú
Kilátás:
udvari
Építési év:
Új építésű
Erkély:
Nincs
Pince:
Nincs
Tároló:
Nincs
Lift:
Van
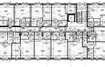
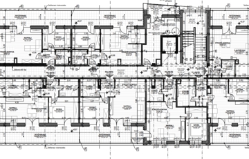
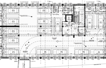
Kiskunlacháza központi részén, kínálom megvételre új-építésű 31 lakásos liftes társas-ház, földszinti 29,50 nm-es lakását! Kiskunlacházán most épülő társas-ház földszint 5-ös. lakása eladó! A társas-házban 31 db lakás épül 27 és 54 nm között három szinten, lakások 2026 februárjában kerülnek átadásra. Nézze meg a többi lakást is a hirdetésem között! Műszaki tartalom: -alap vasalt beton, -falazat phorothetm tégla -monolit beton födém -nyílászáró 3rtg üvegezett műanyag szerkezetű -tető fedése beton cserép -fűtés hőszivattyú, padlófűtés hőleadással -15 cm Dryvit rendszerű homlokzatszigetelés -választható hideg és meleg burkolat. A lakás 29,50 nm, helyiségei:előtér 2,73 nm, fürdőszoba 4,73 nm, lakótér 22,04 nm. A lakáshoz vásárolható teremgarázshely melynek ára 3.500.000 ft, vagy földfelszíni parkolóhely melynek ára 1.500.000 ft, (megvásárlása nem kötelező), valamint tároló helyiség is vásárolható. A társas-házban 31 db lakás kerül megépítésre, a földszinti és első emeleti lakások erkély nélküliek, a 2 emeleti lakások terasz kapcsolattal rendelkeznek. Amennyiben kérdése merül fel, vagy megtekintené a lakást keressen bizalommal! FINANSZÍROZÁS: Nálunk mindent egy helyen intézhet: - hivatalos ingatlanközvetítés; - szakszerű jogi képviselet; - profi CSOK-PLUSZ, és hitelügyintézés: 16 Bank, több mint 100 konstrukció; A részletes adatvédelmi tájékoztató folyamatosan elérhető a gdn-ingatlan adatvedelmi oldalon.
https://ingatlanok.hu/elado/lakas/kiskunlachaza/32-millio-ft;30-negyzetmeter;1-szoba;tegla-epitesu/11587310