Az értékesítő:
Nagy Marianna
+36 70 734 9806

Eladó családi ház Ceglédbercel, 99 990 000 Ft, 128 négyzetméter

99 990 000 Ft
családi ház, 128 négyzetméter
Építőanyag:
Tégla
Egész szobák:
5
Fűtés módja:
Hőszivattyú
Ingatlan állapota:
Épülő
Azonosító:
11587429
Értékesítés típusa:
eladó
Ingatlan típusa:
családi ház
Jelleg:
Családi ház
Település:
Ceglédbercel
Alapterület:
128
Telekterület:
1122
Ár:
99 990 000 Ft
Szintek száma:
Földszintes
Fűtés jellege:
Villany
Kor:
Új építésű
Telekterület típusa:
négyzetméter
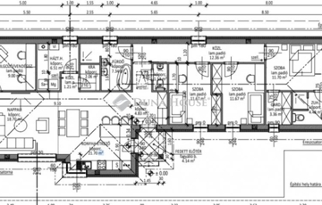
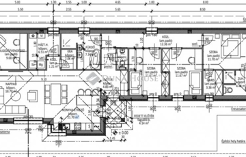
ÚJ ÉPÍTÉSŰ, KORSZERŰ CSALÁDI HÁZ Ceglédbercelen KULCSRAKÉSZ ÁTADÁSSALCeglédbercel nyugodt részén, az Iskola utcában eladó egy 128 m²-es, nappali + 4 szobás, modern kialakítású családi ház 1122 m²-es telken. A telek ára a vételár részét képezi.Az ingatlan ideális választás azok számára, akik új építésű, energiahatékony, hosszú távon is gazdaságosan fenntartható otthont keresnek, kompromisszumok nélkül.Az ár kulcsrakész állapotban értendő, terasszal, konyhabútor és lámpatestek nélkül.Kiemelt előnyök:Előfinanszírozási lehetőség: fizetés kizárólag az elkészült kivitelezési szakaszok utánÁrgancia és kötbérvállalás a kivitelezőtőlModern, gázmentes, energiahatékony rendszer alacsony rezsivelTágas 1122 m²-es telek, számos kertépítési lehetőséggelPraktikus elrendezés: jól szeparált nappali és négy külön nyíló szobaSaját ízlésre szabható belső burkolatok és szaniterekFőbb műszaki jellemzők:Wienerberger Porotherm 30 N+F falazat, 15 cm homlokzati szigetelés, Leier Toscana tetőcserép választható színben.Háromrétegű, prémium nyílászárók antracit külső színnel, alumínium redőnyökkel.Bosch 3400 levegő-víz hőszivattyú vizes padlófűtéssel a teljes házban.Hidegburkolat 6.500 Ft/m²-ig, melegburkolat 6.000 Ft/m²-ig, szaniterek 460.000 Ft értékhatárig.Közművek:Gáz: nincsVillany: ingatlanbanCsatorna: ingatlanbanVíz: ingatlanban Referencia szám: HZ065695
https://ingatlanok.hu/elado/haz/cegledbercel/100-millio-ft;128-negyzetmeter;5-szoba;villany-futes/11587429