Az értékesítő:
Tóth Ágnes
+36 70 634 5582

Eladó lakás Kecskemét, 64 781 600 Ft, 62 négyzetméter

64 781 600 Ft
lakás, 62 négyzetméter
Építőanyag:
Tégla
Egész szobák:
2
Ingatlan állapota:
Épülő
Azonosító:
11587597
Értékesítés típusa:
eladó
Ingatlan típusa:
lakás
Település:
Kecskemét
Alapterület:
62
Ár:
64 781 600 Ft
Emelet:
4. emelet
Fűtés jellege:
Házközponti (egyedi mérővel)
Építési év:
Új építésű
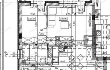
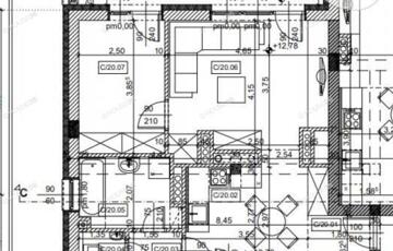
Kecskemét folyamatosan szépülő városrészében, zárt parkosított környezetben, új építésű liftes társasházban lévő, IV. emeleti, 49,75 m2.-es, 2 szobás, 25,08 m2.-es dupla terasszal rendelkező penthouse lakás leköthető! Kitűnő elrendezésű, napfényes lakások, korszerű megoldások jellemzik a zárt lakóparkban kialakított otthonok megvalósulását! A lakásokhoz sorszámozott parkoló vásárolható. Befektetőknek visszabérlési opcióval! Várható átadás: 2026. szeptember 22lakásos, 5 szintes épület Földszintről induló lift teszi kényelmessé a közlekedést. Tömbfűtés, lakásonként egyedi méréssel, padlófűtéssel. Műanyagnyílászárók, 6 kamrás, 3 rétegű hőszigetelt üvegezéssel, rejtett redőnytokok beépítése, redőnnyel. Helyiségenként, hűtő-fűtő klíma kerültelepítésre. Padló nagy kopásállóságú kőkerámia és laminált burkolattal lesz ellátva. Vizes helyiségekben jó minőségű porcelán szaniterek opcionálisan, zuhanytálca illetve fürdőkád a terveknek megfelelően a hozzátartozó csaptelep és zuhanyszett tartozékaival. A társasházat sok zöld felület veszi körül, fákkal, cserjékkel, parkosított kerttel, automata öntöző rendszerrel. A zárt udvarban egy EU szabványoknak megfelelő játszótér is kialakításra kerül. A parkolók megvilágításáról napelemes közvilágítás gondoskodik. Az iroda legfrissebb, aktuális kínálatát a HOUSE36 saját weboldalán találja!
https://ingatlanok.hu/elado/lakas/kecskemet/65-millio-ft;62-negyzetmeter;2-szoba;tegla-epitesu/11587597