Az értékesítő:
Horváth Zoltán
+36 70 550 6680

Eladó családi ház Vecsés, 137 800 000 Ft, 120 négyzetméter

137 800 000 Ft
családi ház, 120 négyzetméter
Építőanyag:
Tégla
Egész szobák:
4
Komfort fokozat:
Dupla komfort
Ingatlan állapota:
Kitűnő
Azonosító:
11588121
Értékesítés típusa:
eladó
Ingatlan típusa:
családi ház
Jelleg:
Ikerház
Település:
Vecsés
Alapterület:
120
Telekterület:
270
Ár:
137 800 000 Ft
Kor:
Új építésű
Telekterület típusa:
négyzetméter
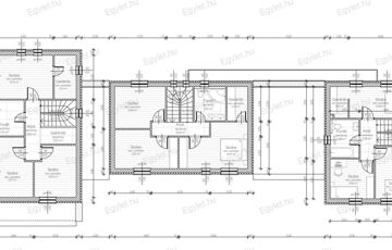
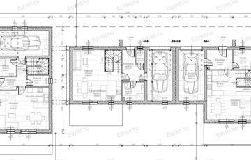
Megvételre kínálunk Vecsés legszebb részén egy garázsos, HÓSZIVATTYÚS, teraszos, 120 nm-es, 4 szobás, 2 fürdős ikerházat. Minőségi alapanyagokból, magas műszaki tartalommal, igényes kivitelezés jellemzi a projektet, ahol a biztonság és a kényelem mellett az energiatakarékosság volt a fő szempont. A ház átgondolt tervezésének köszönhetően kényelmes, otthonos, szellős, viszont ugyanakkor bővelkedik a praktikus megoldásokban. A lakások csupán a garázsoknál vagy a tárolóknál érnek össze, így nincsenek a lakótérnél közös falak, ezért a szomszédok nem zavarják egymást. Az ingatlanok úgy működnek, mint ha önálló családi házak lennének, csak sokkal kedvezőbb áron. Az ingatlan fűtéséről, valamint a használati melegvíz ellátásáról egy modern, energia takarékos, innovatív levegő-víz hőszivattyú gondoskodik H tarifás üzemeltetéssel. Ennek köszönhetően a rezsi költségek minimalizálódnak. A hőszivattyú a padlón keresztül fűt, így télen egyöntetűen kellemesen meleg a hőmérséklet. A garázs a lakásból átjárható, valamint a ház hasznos területe bővíthető! Ennél a beruházásnál most lehetősége van kompromisszumok nélkül egy olyan házba költözni, ahol Ön kiválaszthatja a hideg és meleg burkolatokat, szanitereket, valamint az egyéb kiegészítőket a családja legnagyobb megelégedésére, ez által személyre szabva álmai otthonát. A kulcsra kész ár tartalmazza az elektromos redőny előkészítést, három rétegű nyílászárókat, riasztó előkészítést, kaputelefon és motoros kapu kiépítést, A gépjárművekkel az ingatlanhoz tartozó garázsban vagy térkövezett beállón lehet biztonságosan parkolni. Az ingatlanhoz egy impozáns 270 nm-es privát telek tartozik. A hirdetés referencia fotókat is tartalmaz. Igénybe vehető lehetséges kedvezmények: CSOK 5% Áfa visszatérítés Babaváró hitel Illeték kedvezmény vagy mentesség. Az ingatlan árát a kulcsrakész állapotra adtuk meg, 2025. decemberi költözéssel. Helyiség lista a földszinten: - Előtér - Közlekedő - Garázs - WC - Fürdőszoba - Amerikai konyha, - Étkező - Nappali - Tároló - Terasz Helyiség lista az emeleten: - Közlekedő - Lépcsőház - Fürdőszoba - Három szoba Az ingatlan biztonságos, nyugodt, csendes, kertes házas övezetében, Vecsés egyik legszebb részén található. A környék fejlett infrastruktúrájának köszönhetően bővelkedik a szociális intézményekben, bölcsőde, óvoda, általános iskola, orvosi intézmények, bevásárlási lehetőségek, találhatóak a közelben. Közlekedése kiváló, busszal vagy vonattal Budapest központja rövid idő alatt megközelíthető. Az M0-ás, M 4-es, valamint az M 5-ös autópályák pár perc alatt elérhetőek. Hitel, CSOK igénylésben díjmentes ügyintézéssel állunk rendelkezésére! Nálunk kiválaszthatja az Ön számára legkedvezőbb ajánlatot. Várom megtisztelő érdeklődésüket.
https://ingatlanok.hu/elado/haz/vecses/138-millio-ft;120-negyzetmeter;4-szoba;nincs-megadva-futes/11588121