Az értékesítő:
Nyilas Szabina
+36 70 469 3821

Eladó családi ház Mogyoród, 169 000 000 Ft, 134 négyzetméter

169 000 000 Ft
családi ház, 134 négyzetméter
Egész szobák:
6
Ingatlan állapota:
Kitűnő
Azonosító:
11588411
Értékesítés típusa:
eladó
Ingatlan típusa:
családi ház
Jelleg:
Ikerház
Település:
Mogyoród
Alapterület:
134
Telekterület:
400
Ár:
169 000 000 Ft
Terasz:
Nincs
Erkély:
Van
Melléképület:
Nincs
Pince:
Nincs
Parketta:
Nincs
Kábel TV:
Nincs
Telekterület típusa:
négyzetméter
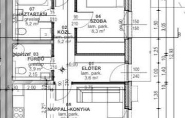
Mogyoród kertvárosi csendes részén eladó egy új építésű ikerház egyik fele. Tökéletes választás lehet nagy családosok számára! Ez a modern otthon 122 nm-es lakótérrel, egy 11,24 nm-es terasszal, egy 16,4 nm-es garázzsal egy fedett autóbeállóval és egy 400 nm-es kerttel biztosítja a hétköznapok kényelmét. Elrendezését tekintve jól átgondolt/praktikus,így akár két generáció számára is biztosítja a kényelmes,nyugodt élet lehetőségét. Padlófűtés és korszerű hőszivattyús berendezés gondoskodik az otthon melegéről. A H tarifás megoldásnak köszönhetően költséghatékony a leghidegebb téli időszakokban is! A ház minőségi alapanyagokból épül és modern műszaki tartalommal tervezett. A belső kialakítás illetve a burkolatok még saját ízlésre formálhatók. Lokáció szempontjából tökéletes az elhelyezkedése, hiszen a Gödöllő-i hév megállója (Szentjakab) csupán pár perc séta, míg autóval az M3 autópályáról szintén könnyen és gyorsan megközelíthető,de mégis a természet közelsége pihentető/nyugtató hatást gyakorol az itt lakókra! Átadás várható időpontja 2026 decembere. Egyedi igényekre szabott lakáshitelekkel állunk rendelkezésére. Bankfüggetlen hitelcentrumunk az országban elérhető összes bank és hitelintézet ajánlatát versenyezteti az Ön számára díjmentesen. Munkatársaink nagy szakmai tapasztalattal várják Önt az előre egyeztetett időpontban. Bővebb információért és a megtekintéssel kapcsolatban hívjon bizalommal!
https://ingatlanok.hu/elado/haz/mogyorod/169-millio-ft;134-negyzetmeter;6-szoba;nincs-megadva-futes/11588411