Az értékesítő:
Mihócza Zsolt
+36 30 686 1118

Eladó lakás Kecskemét, 44 900 000 Ft, 61 négyzetméter

44 900 000 Ft
lakás, 61 négyzetméter
Építőanyag:
Panel
Egész szobák:
3
Ingatlan állapota:
Átlagos
Azonosító:
11588543
Értékesítés típusa:
eladó
Ingatlan típusa:
lakás
Település:
Kecskemét
Alapterület:
61
Ár:
44 900 000 Ft
Emelet:
10. emelet
Fűtés jellege:
Központi (egyedi mérővel)
Építési év:
21-50 éves
Erkély:
Van
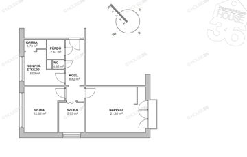
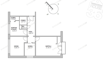
Kecskemét Széchenyivárosban, 61 m2-es, 3 szobás, erkélyes lakás, liftes házban eladó! Jellemzők: -szigetelt tömb -3 külön nyíló szoba -lift -cserélt műanyag-nyílászárók -távfűtés egyedi mérőkkel -kitűnő infrastruktúra -azonnal birtokba vehető Figyelem az adatlap megbízóinktól kapott adatok alapján készült,pontosságáért felelősséget nem tudunk vállalni! ​ A HOUSE36 kínálatában található összes ingatlannal kapcsolatban tudok felvilágosítást nyújtani! Hívjon bizalommal! Szolgáltatásaink Kereső ügyfeleink számára INGYENESEK! ​ Ha az ingatlan vásárláshoz meglévő ingatlan eladása szüksége keressen nyugodtan állok rendelkezésére!! Az iroda legfrissebb, aktuális kínálatát a HOUSE36 saját weboldalán találja!
https://ingatlanok.hu/elado/lakas/kecskemet/45-millio-ft;61-negyzetmeter;3-szoba;panel-epitesu/11588543