Az értékesítő:
Gonda Ildikó
+36 70 612 4142

Eladó családi ház Hódmezővásárhely, 60 000 000 Ft, 196 négyzetméter

60 000 000 Ft
családi ház, 196 négyzetméter
Építőanyag:
Tégla
Egész szobák:
7
Ingatlan állapota:
Átlagos
Azonosító:
11589125
Értékesítés típusa:
eladó
Ingatlan típusa:
családi ház
Jelleg:
Családi ház
Település:
Hódmezővásárhely
Alapterület:
196
Telekterület:
815
Ár:
60 000 000 Ft
Fűtés jellege:
Konvektoros
Terasz:
Nincs
Erkély:
Nincs
Beépíthető tetőtér:
Nincs
Melléképület:
Van
Pince:
Nincs
Klíma:
Van
Telekterület típusa:
négyzetméter
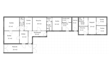
Hódmezővásárhely Csúcs városrészében eladó egy 3 lakrészből álló vegyes falazatú, ipari árammal ellátott családi ház. Lakás beszámítása lehetséges 25 M Ft-ig, meghatározott feltételek mellett. A telek 815 m2, a ház hasznos alapterülete 196 m2, melyből 188 m2 a fűtött rész. Tartozik hozzá még egy kamra és padlásfeljáró, mely az udvarról közelíthető meg. Kocsibeállónak pedig a száraz kapu beállót is lehet használni, mely alkalmas motorkerékpár, vagy bicikli tárolására is. Az ingatlan 3 lakrészből áll, melyből az első nagyobbik és a második kisebb garzon egybe nyitható (jelenleg le van választva). A harmadik legújabb lakrész különálló, az udvarra nyílik a bejárata (lásd alaprajz). Az épület folytatásában egy 20 m2-es nyitott műhely is található, mely tárolónak, vagy kocsibeállónak is kiválóan alkalmas. Az udvar tágas és rendezett. Részletek: I. Utcai lakrész: 113 m2, fűtése gáz konvektor + 3 db csempekályha -Szoba 21 m2 Szoba 22 m2 Előtér 12 m2 -Folyosó 4 m2 -WC 2 m2 -Szoba 11 m2 -Közlekedő 14 m2 -Konyha 20 m2 -Átjáró 2 m2 -fürdőszoba WC-vel 5 m2 II. Lakrész: 27 m2, fűtése gáz konvektor + klíma -Szoba 14 m2 -Konyha 8 m2 -Fürdőszoba WC-vel 5 m2 III. Lakrész: 48 m2, fűtése központi fűtés -Szoba 9 m2 -Szoba 9 m2 -Nappali 14 m2 -Konyha 8 m2 -Fürdőszoba WC-vel 8 m2 -Új villamos hálózat A közelben buszmegálló, óvoda, iskola, boltok, de az elkerülő út is pár percre található. Az ingatlan irányára: 60 M Ft. Külső képekért és időpont egyeztetésért hívjon akár hétvégén is! Tisztelettel: Gonda Ildikó Ingatlanértékesítő Városi Ingatlaniroda Telefon : nulla hat hetven hatszáztizenkettő negyvenegy negyvenkettő e-mail : gonda.ildiko@varos.hu Irodánk készséggel áll ügyfeleink rendelkezésére nem csak ingatlanügyekben, de hitelügyintézésben is : 3 %-os fix kamatozású Otthon Start hitel, CSOK Plusz hitel, Falusi CSOK, egyéb jelzáloghitelek, babaváró kölcsön, szabad felhasználású hitelek, személyi kölcsön, jogi ügyekben /ügyvéd/ és energetikai tanúsítvány készítésében is /energetikus/. (További képekért és információkért kérem hívjon!)
https://ingatlanok.hu/elado/haz/hodmezovasarhely/60-millio-ft;196-negyzetmeter;7-szoba;konvektoros-futes/11589125