Az értékesítő:
Czakó András
+36 70 334 9443

Eladó vendéglátó egység Hercegszántó, 29 900 000 Ft, 120 négyzetméter

29 900 000 Ft
vendéglátó egység, 120 négyzetméter
Ingatlan állapota:
Felújított
Azonosító:
11589489
Értékesítés típusa:
eladó
Ingatlan típusa:
vendéglátó egység
Jelleg:
Egyéb
Település:
Hercegszántó
Alapterület:
120
Ár:
29 900 000 Ft
Tulajdonviszony:
Tulajdonjog
Szintek:
Földszintes
Elhelyezkedés:
Utcafronti
Berendezés:
Van
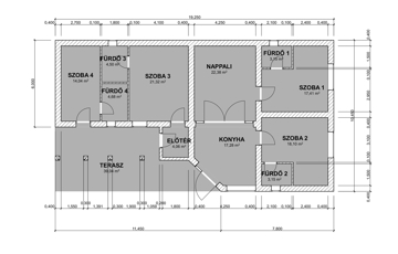
Az 51-es számú főút mellett, közel a szerb határhoz, 5 szobás, 4 fürdőszobás apartmanház eladó. A ház alapterülete 120 nm, elosztása: nappali-konyha-étkező egy légtérben, 4 hálószoba fürdőszobákkal. Mindegyik hálószobának van saját fürdőszobája. Alaprajz a fotók között. Kivett lakóház, udvar besorolású ingatlan. Apartmanházként vagy többgenerációs házként is használható. A házat 2019-ben újították fel, ekkor alakították át apartmanháznak. Felújították a teljes közműhálózatot, műanyag ablakokat- ajtókat és új burkolatokat építettek be. Az ár tartalmazza a fotókon látható beépített konyhát, hálószoba bútorokat is. Fűtés hűtő-fűtő klímákkal(5 db), kedvezményes H tarifával. Van vezetékes gáz is, és van szabad kémény kandallóhoz... Az első udvar részben térkövezett, van kocsibeálló, garázs, pince. A hátsó udvarban megtartották a gazdasági épületeket, ólakat. Az állattartás megengedett. A telek összesen 2.367 nm, ebből a művelhető kert kb. 1500 nm. Tehermentes ingatlan, gyorsan birtokba vehető. A tulajdonos magánszemély, nincs ÁFA! Hívjon, szívesen megmutatjuk a házat. Üdvözlettel, Czakó András ingatlanközvetítő.
https://ingatlanok.hu/elado/vendeglato_egyseg/hercegszanto/30-millio-ft;120-negyzetmeter;egyeb-jellegu;tulajdonjog-tulajdonviszony/11589489