Az értékesítő:
Hegedüs Attila
+36 20 926 8433

Eladó lakás Nyíregyháza, Belváros, 43 630 000 Ft, 37 négyzetméter

43 630 000 Ft
lakás, 37 négyzetméter
Építőanyag:
Tégla
Egész szobák:
1
Ingatlan állapota:
Épülő
Azonosító:
11590500
Értékesítés típusa:
eladó
Ingatlan típusa:
lakás
Település:
Nyíregyháza
Alapterület:
37
Ár:
43 630 000 Ft
Emelet:
1. emelet
Fűtés jellege:
Cirkó
Építési év:
Új építésű
Lift:
Van
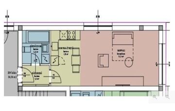
Belváros szívében Kossuth utcán eladásra kínálok egy 36,36 nm alapterületű 1 szobás garzonlakást mely 2026 nyarán átadásra kerülő 4 szintes liftes társasház első emeletén található.Az ingatlan A + besorolású,Prémium kivitelezés – hőszivattyús fűtés-hűtés, padlófűtés, 3 rétegű nyílászárók,Belső, zöld udvar – játszótérrel, pihenőterekkel a nyugodt életért,parkolás megvásárolható teremgarázsban megoldott melynek ára mérettől függően 7,8 M + Áfa tól elérhető.Ez az utolsó ilyen méretű lakás ne szalassza el a lehetőséget ! Az ingatlan azonosítója: 97478Érdeklődni: +36209268433 Az ingatlan azonosítója: 97478 Érdeklődni: +36209268433
https://ingatlanok.hu/elado/lakas/nyiregyhaza/44-millio-ft;37-negyzetmeter;1-szoba;tegla-epitesu/11590500