Az értékesítő:
Szabolcsi Zoltán
+36 70 256 0693

Eladó lakás Nyíregyháza, Belváros, 43 500 000 Ft, 48 négyzetméter

43 500 000 Ft
lakás, 48 négyzetméter
Építőanyag:
Tégla
Egész szobák:
1
Ingatlan állapota:
Épülő
Azonosító:
11590503
Értékesítés típusa:
eladó
Ingatlan típusa:
lakás
Település:
Nyíregyháza
Alapterület:
48
Ár:
43 500 000 Ft
Emelet:
1. emelet
Fűtés jellege:
Cirkó
Építési év:
Új építésű
Lift:
Nincs
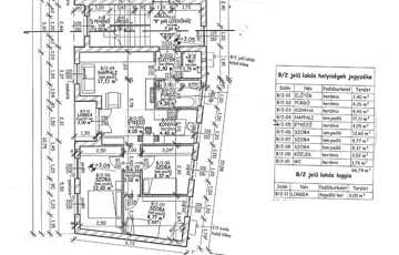
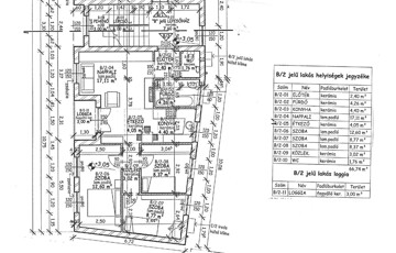
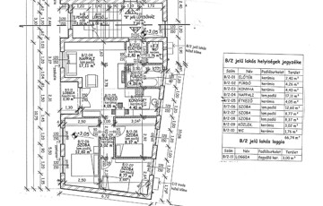
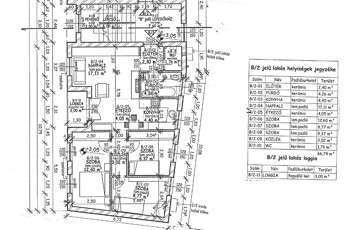
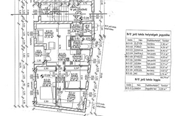
Nyíregyháza Abszolút Belvárosban, MINŐSÉGI KIVITELEZŐTŐL, ÚJ ÉPÍTÉSŰ, 10 lakásos társasházban, 47,69 nm + 3 nm loggia 2. emeleten 43,5Mft-ért, 66,7 nm + 3nm loggia 59,8Mft-ért és egy 75,17 nm + 3 nm loggia 1. emeleti 65,7Mft-ért  lakás, 18,59nm-es garázs9,5Mft-ért, 45,15 nm-es földszinten lévő üzlet, 39,2Mft-ért megvásárolható. Átadása 2025 év vége. Választható minőségi járólap és parketta burkolattal, beltéri ajtókkal szaniterekkel. 3 réteg üvegezésű műanyag nyílászárókkal, egyedi gáz kondenzációs gázkazánnal padlófűtéssel, 3,5 KW-os inverteres klímával. 15 cm homlokzati hőszigeteléssel ellátva, zárt udvaros társasházban.Az ingatlan azonosítója: 97551Érdeklődni: +36702560693 Az ingatlan azonosítója: 97551 Érdeklődni: +36702560693
https://ingatlanok.hu/elado/lakas/nyiregyhaza/44-millio-ft;48-negyzetmeter;1-szoba;tegla-epitesu/11590503