Az értékesítő:
Bugyi Zsuzsa
+36 30 409 2510

Eladó családi ház Nyíregyháza, 65 000 000 Ft, 90 négyzetméter

65 000 000 Ft
családi ház, 90 négyzetméter
Építőanyag:
Tégla
Egész szobák:
3
Ingatlan állapota:
Épülő
Azonosító:
11590507
Értékesítés típusa:
eladó
Ingatlan típusa:
családi ház
Jelleg:
Családi ház
Település:
Nyíregyháza
Alapterület:
90
Telekterület:
500
Ár:
65 000 000 Ft
Fűtés jellege:
Cirkó
Kor:
1-5 éves
Telekterület típusa:
négyzetméter
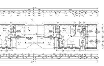
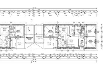
Nyíregyházán, Nyírszőlős csendes utcájában eladásra kínálunk egy 2026 szeptemberi átadással,  Porotherm 30 -as téglaszerekezetű, 15 cm grafittal hőszigetelt újépítésű ikerházakat.  Az ingatlanok tetőszerkezete fa, nyeregtetős, burkolatai kerámia és laminált burkolat, fűtése H -tarifás hősszívattyú, padlófűtéssel, nyílászárói 3 rétegű hőszigeteltek.  1 ingatlan: 90 nm + 17 nm Garázs  Nappali, Étkező, Konyha + 3 szoba. 500 nm-es telek 65 M FT.  2 ingatlan: 90 nm + 17 nm Garázs  Nappali, Étkező, Konyha + 3 szoba.  1500 nm-es telek, 69 M FT.  Kérem keressenek kérdéseikkel bizalommal. Az ingatlan azonosítója: 97626Érdeklődni: +36304092510 Az ingatlan azonosítója: 97626 Érdeklődni: +36304092510
https://ingatlanok.hu/elado/haz/nyiregyhaza/65-millio-ft;90-negyzetmeter;3-szoba;cirko-futes/11590507