Az értékesítő:
Hámori-Ébel Emese
+36 30 997 4501

Eladó családi ház Nemesvámos, 170 000 000 Ft, 151 négyzetméter

170 000 000 Ft
családi ház, 151 négyzetméter
Építőanyag:
Tégla
Egész szobák:
2
Komfort fokozat:
Összkomfort
Ingatlan állapota:
Kitűnő
Azonosító:
11591349
Értékesítés típusa:
eladó
Ingatlan típusa:
családi ház
Jelleg:
Családi ház
Település:
Nemesvámos
Alapterület:
151
Telekterület:
600
Ár:
170 000 000 Ft
Terasz:
Van
Erkély:
Van
Telekterület típusa:
négyzetméter
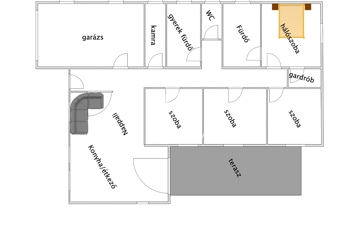
Prémium minőségű, ÚJSZERŰ bővíthető családi otthon eladó! FIGYELEM! - Igényesen kivitelezett otthon - Az ingatlanban PRÉMIUM minőségű szaniterek, minőségi burkolatok - Elektromosan vezérelhető (telefonról is) alumínium redőnyök (egyedi színű redőny) - Térfigyelő kamerarendszer - - Fedett (elektromos, szigetelt aluminium redőnnyel teljesen lezárható, redőnyönként működtethető) teraszon AJÁNDÉK 4 személyes JAKUZZIVAL, 2 személyes INFRASZAUNÁVAL - Ingatlanban VÍZLÁGYÍTÓ berendezés - Nappaliban TÉRELVÁLASZTÓ ÜVEGFAL - Amerikai konyhás nappali - SZIGETELÉS: 15 cm - Tájolása NYUGATI, ezért a nappaliból ÖRÖK NAPLEMENTE-, udvarból pedig BAKONY panoráma tárul elénk - Az elírások és változtatások jogát fenntartjuk! Főbb jellemzők: Ingatlan: 151 m2 Terasz: 18,16 m² (elektromosan zárható, szigetelt alumínium redőnyökkel) Telek területe: 600 m² Építés éve: 2020–2021 Szobaszám: 2+ 3 félszoba + 2 félszoba (tetőtér) Fűtés-hűtés: hőszivattyús padlófűtés + nappaliban hűtő-fűtő klíma Melegvíz: hőszivattyú biztosítja Nyílászárók: új, műanyag, 3 rétegű üvegezéssel, elektromos redőnyökkel és szúnyoghálóval Vízhálózat: beépített vízlágyító berendezéssel Belső elrendezés és felszereltség: - Prémium minőségű szaniterek, burkolatok és beépített bútorok - Amerikai konyhás nappali egyedi kialakítású, bővíthető konyhaszigettel - Prémium Bosch, Electrolux beépített konyhagépek, beépített kávéfőzővel (Bosch) és fiókba épített szeletelőgéppel - Magas minőségű beépített szekrények több helyiségben - Két fürdőszoba (egyik zuhanyzós, másik fürdőkádas) A szülői lakosztályból nyílik egy privát fürdőszoba (zuhanyzós) és egy gardróbhelyiség. Tetőtér előkészítve! A tetőtér beépítése megkezdődött, a tető megemelése nélkül. 2 szoba, 1 fürdőszoba és egy WC került kialakításra. A víz és villany kiépítve, gipszkartonozás és burkolás előtti állapotban. Tetőablakok beépítve, lépcső kialakítása hátra van – a befejezés az új tulajdonos ízlésére bízható. Külső jellemzők és biztonság: - Térkövezés (egyedi térkő) elkészült, kert füvesítése folyamatban - Teljes kerítés kész, egyedi megjelenésű dizájn kivitelben - Elektromosan működtethető kapu, két autó számára kényelmes beállási lehetőség Térfigyelő kamerarendszer kiépítve – ajtónyitásra automatikusan aktiválódik, így a ház teljesen biztonságos Nyugodt, rendezett környezet, modern újépítésű házak szomszédságában Ez az ingatlan azoknak készült, akik MINŐSÉGI, KORSZERŰ és BŐVÍTHETŐ otthont keresnek, ahol minden részlet a kényelmet, biztonságot és az eleganciát szolgálja. Költözésre kész, prémium családi ház tetőtérrel bővíthető lehetőséggel – 600 m²-es telken, egyedi megjelenéssel és teljes biztonsági rendszerrel! Amennyiben az ingatlan megvásárlásához el kell adnia jelenlegi otthonát, úgy annak és a teljes folyamatnak a lebonyolításában is állok rendelkezésre! További információkért forduljon hozzám bizalommal, hívjon a megadott telefonszámon - akár hétvégén is! TOVÁBBI SZOLGÁLTATÁSAINK: - Megbízható ügyvédi háttér - INGYENES, FÜGGETLEN hitelügyintézés - INGYENES, FÜGGETLEN biztosítási tanácsadás - Energetikai tanúsítvány és ingatlan értékbecslés készítése - Klíma rendszerek kiépítése és beüzemelése - Riasztó- és kamera rendszerek kiépítése - Közművek és szolgáltatók átírása - Birtokbaadás lebonyolítása - Kert- és tereprendezés - Ingatlan takarítás - Ingatlan felújítás - Költöztetés 10 ÉVES SZAKMAI TAPASZTALATTAL! #gonahome #tegyelprobara #keressbizalommal #mindenamiingatlan
https://ingatlanok.hu/elado/haz/nemesvamos/170-millio-ft;151-negyzetmeter;5-szoba;nincs-megadva-futes/11591349