Az értékesítő:
Nagy Barbara
+36 70 490 7364

Eladó családi ház Mogyoród, 63 250 000 Ft, 110 négyzetméter

63 250 000 Ft
családi ház, 110 négyzetméter
Építőanyag:
Tégla
Egész szobák:
4
Komfort fokozat:
Összkomfort
Fűtés módja:
Gáz
Ingatlan állapota:
Átlagos
Azonosító:
11591500
Értékesítés típusa:
eladó
Ingatlan típusa:
családi ház
Jelleg:
Családi ház
Település:
Mogyoród
Alapterület:
110
Telekterület:
509
Ár:
63 250 000 Ft
Szintek száma:
Földszintes
Fűtés jellege:
Cirkó
Kor:
50 évesnél régebbi
Terasz:
Van
Pince:
Nincs
Telekterület típusa:
négyzetméter
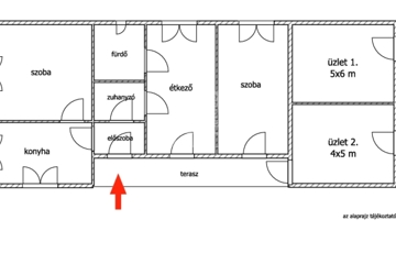
Eladásra kínálok Mogyoród központi részén, egy önálló csaladi házat. A ház 1940es években mogyoródi kőből épült, így rendkívül stabil szerkezettel rendelkezik, majd téglából 1960-ban hozzá építettek. Tető cseréppel borított. Az utcafronti részen jelenleg 2 külön bejaratú üzlethelyiség található, melyeknek közös mosdójuk van. A ház udvar felöli bejarattal rendelkező, hátsó része gyakorlatilag 2 szoba, konyha, előszoba, fürdőszoba, plusz külön zuhanyzó, kamra es egy fedett terasz. A lakóház utan az udvarban tároló es garazs is van. Rendezett, 510 nm nagyságú telek! Átalakítási tippek: - ház alkalmas 5 szoba kialakítására is, avagy az étkezőt egybevonva az egyik szobával, és az üzleteket szobává alakítva, egy modern 3 hálószoba, plusz nappalis elosztast is ki lehet alakítani! - Ezen túl még 2 kényelmes lakás is kialakitható, 2 külön bejárattal. Egyszóval rengeteg lehetőséget, és elérhető aron nyujt ez a nagyszerű ház! Hivjon bizalommal, tekintsük meg együtt!
https://ingatlanok.hu/elado/haz/mogyorod/63-millio-ft;110-negyzetmeter;4-szoba;cirko-futes/11591500