Az értékesítő:
Kovács Attila
+36 30 768 7582

Eladó üdülő/nyaraló Gárdony, 51 900 000 Ft, 59 négyzetméter

51 900 000 Ft
üdülő/nyaraló, 59 négyzetméter
Építőanyag:
Tégla
Egész szobák:
1
Azonosító:
11591572
Értékesítés típusa:
eladó
Ingatlan típusa:
üdülő/nyaraló
Jelleg:
Nyaraló
Település:
Gárdony
Alapterület:
59
Telekterület:
185
Ár:
51 900 000 Ft
Elhelyezkedés:
Udvari
Építési év:
21-50 éves
Telekterület típusa:
Négyzetméter
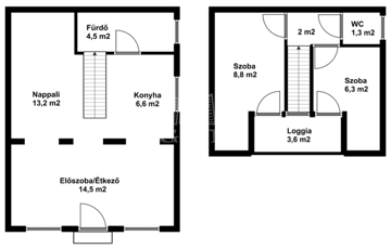
4681. Agárdon, pár perc sétára a tóparttól, csendes utcában található, 80-as években épült, 2018-ban felújított, egész évben lakható, gázcirkó fűtéses, hőszigetelt, műanyag nyílászárókkal rendelkező, tetőtér beépítéses, 59 m2 lakóterületű, nappali + 2 hálószobás ikernyaraló, inverteres klímával, gondozott 185 m2-es kertrésszel eladó. Ár: 51,9 Mft
https://ingatlanok.hu/elado/udulo_nyaralo/gardony/52-millio-ft;59-negyzetmeter;3-szoba;nyaralo-jellegu/11591572