Az értékesítő:
Tec 17 Ingatlan Kft.
+36 70 504 8744

Eladó családi ház Gödöllő, 134 900 000 Ft, 150 négyzetméter

134 900 000 Ft
családi ház, 150 négyzetméter
Egész szobák:
4
Ingatlan állapota:
Épülő
Azonosító:
11592146
Értékesítés típusa:
eladó
Ingatlan típusa:
családi ház
Jelleg:
Családi ház
Település:
Gödöllő
Alapterület:
150
Telekterület:
407
Ár:
134 900 000 Ft
Fűtés jellege:
Egyéb
Telekterület típusa:
négyzetméter
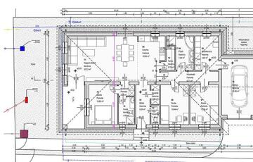
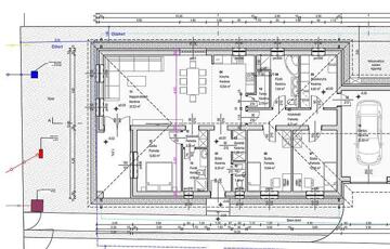
GÖDÖLLŐN, ALVÉG VÁROSRÉSZEN ELADÓ EGY ÚJ ÉPÍTÉSŰ, FÖLDSZINTES, NETTÓ 150 NM-ES IKERHÁZFÉL, 407 NM-ES TELEKKEL ÉS 1 ÁLLÁSOS GARÁZZSAL. Az ingatlan 2026 júniusában kerül kulcsrakész állapotba. Az épület társas házzá lesz nyilvánítva. Főbb jellemzők: Alapterület: nettó 150 m² Telekméret: 407 m² Építési éve: 2026 (új építésű) Falazat: 30 cm Porotherm tégla Válaszfalak: 10 cm Porotherm Szigetelés: 15 cm grafitos dryvit a homlokzaton, aljzatban 10 cm szigetelés Tető: Bramac cserép, tetőtérben 25 cm üveggyapot hőszigetelés Fűtés: Energia hatékony hőszivattyús rendszer Stabil, 100 cm mély beton alap Parkolás: Saját 1 állásos garázs Az ár tartalmazza: Beltéri ajtók: 60.000 Ft/db, Beltéri hidegburkolatok: 6.500 Ft/ m², Beltéri melegburkolatok: 6.000 Ft/ m², Kültéri burkolatok: terasz 6,500 Ft/ m², Szaniterek: Kád: 60.000 Ft/db, Kádtöltő: 25.000 Ft/db, Zuhany csaptelep: 25.000 Ft/db, Mosdó csaptelep: 15.000 Ft/db, Standardmosdó: 20.000 Ft/db, Wc + tartály: 35.000 Ft. Elrendezés: Amerikai konyhás nappali, 3 szoba, zuhanyzós fürdőszoba + mellékhelyiség, kádas fürdőszoba + mellékhelyiség, külön mellékhelyiség, mosókonyha, garázs, kamra, terasz. Környék: A környék jól ellátott helyi és agglomerációs tömegközlekedéssel, ami kényelmes eljutást biztosít mind Gödöllő belvárosába, mind Budapest irányába. A H8 HÉV/ Gödöllő felől közvetlen kapcsolatot biztosít Budapest Örs vezér tere metróállomással, ahol a 2-es metróhoz lehet átszállni. Gödöllő városán belül több helyi buszjárat közlekedik, amelyek összekötik a városrészeket, így Alvéget is a vasútállomással és a város központjával. A buszmegállók gyalogosan néhány perc alatt elérhetők a környéken. Közelben számos bevásárlási lehetőség, gyógyszertár, bölcsőde, óvoda, iskola, játszótér található. Finanszírozás: Az ingatlan banki finanszírozással is megvásárolható, melyben irodánk ingyenes tanácsadással áll rendelkezésükre! Irányár: 134,9 M Ft. VEVŐINK RÉSZÉRE A KÖZVETÍTÉS DÍJTALAN A hirdetésben szereplő adatok tájékoztató jellegűek.
https://ingatlanok.hu/elado/haz/godollo/135-millio-ft;150-negyzetmeter;4-szoba;egyeb-futes/11592146