Az értékesítő:
Csobai Lászlóné
+36 70 743 3389

Eladó családi ház Vecsés, 129 000 000 Ft, 119 négyzetméter

129 000 000 Ft
családi ház, 119 négyzetméter
Építőanyag:
Tégla
Egész szobák:
5
Fűtés módja:
Hőszivattyú
Ingatlan állapota:
Épülő
Azonosító:
11592260
Értékesítés típusa:
eladó
Ingatlan típusa:
családi ház
Jelleg:
Családi ház
Település:
Vecsés
Alapterület:
119
Telekterület:
540
Ár:
129 000 000 Ft
Szintek száma:
Földszintes
Fűtés jellege:
Villany
Kor:
Új építésű
Klíma:
Van
Telekterület típusa:
négyzetméter
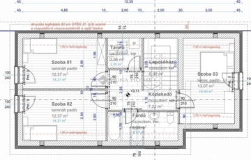
Vecsésen frekventált helyen kínálok megvételre egy új építésű családi házat .1174 nm -es telken ügyvédi megosztással 2 db különálló családi ház épült. Készültségi fok 100 %Telek mérete 540 nm ( saját )Nettó alapterület 119 nmKialakításAlsó szinten :-amerikai konyhás nappali-szoba -Közlekedő-Zuhanyzós Fürdőszoba-Lépcsőtér ( alatta kamra kialakítva)Emeleten :- 3 db hálószoba- Fürdőszoba káddal ellátva-Gardrób-KözlekedőSzobákban laminált parketta , a többi helységben kő burkolatok kerültek lerakásra. Az ingatlan beton alapon b 30-as Porotherm téglából épül , 15 cm vastagságú eps 80 -as szigeteléssel ellátva, rajta nemes vakolattal.A tető fa födémes 30 cm es szigeteléssel ellátva , a héjazat Tonndach tetőcserép.Hőszivattyús fűtésrendszer , padlón keresztül történő hőleadással. Nyílászárók 3 rétegű műanyag nyílászárókAz épület mellett egy fedett autó beálló került kialakításra. Bár osztott telken található az ingatlan mégis külön érzetet ad hiszen nincs közös bejárat sem közös fal, ráadásul a telek is 540 nm !Közlekedés szempontjából bevásárlás, iskola, óvoda, orvosi ellátás pár percnyire elérhető. Amennyiben hirdetésem felkeltette érdeklődését keressen bizalommal. 129000000 Ft
https://ingatlanok.hu/elado/haz/vecses/129-millio-ft;119-negyzetmeter;5-szoba;villany-futes/11592260