Az értékesítő:
Tősér Péter
+36 20 383 0799

Eladó lakás Budapest I. ker, Tabán, 134 900 000 Ft, 83 négyzetméter

134 900 000 Ft
lakás, 83 négyzetméter
Építőanyag:
Tégla
Egész szobák:
3
Komfort fokozat:
Összkomfort
Ingatlan állapota:
Felújítandó
Azonosító:
11592568
Értékesítés típusa:
eladó
Ingatlan típusa:
lakás
Település:
Budapest I. ker
Alapterület:
83
Ár:
134 900 000 Ft
Tulajdonviszony:
Saját
Emelet:
3. emelet
Fűtés jellege:
Távfűtés
Elhelyezkedés:
Társasház
Kilátás:
panorámás
Építési év:
50 évesnél régebbi
Erkély:
Van
Kert:
Közös telek
Kertkapcsolat:
Nincs
Kocsibeálló:
Nincs
Pince:
Van
Lift:
Van
Klíma:
Van
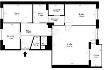
Eladó az I. kerületben a Tabánban, közvetlenül a Budai Vár lábánál a Dózsa György téren egy jó állapotú, liftes, gondozott nagy kerttel rendelkező társasházban lévő III. emeleti, 83nm-es, 3 szoba + konyhás, felújítandó állapotú, DNY-i fekvésű, klímás, napfényes lakás loggiával és szép kilátással a Naphegy illetve a Budai Vár irányába. A beosztás jelenleg is kiváló, a szobák különnyílóak de a felújítás során akár tovább is alakítható pl. amerikai konyhás nappali + 3 hálószobássá is, átalakítási javaslatok a képek között nemsokára elérhetőek lesznek. A közös költség 27.851.Ft, a fűtést egyedi méréses távfűtés biztosítja. Az ingatlanhoz tartozik egy pincerész is. A környék kiváló infrastruktúrával rendelkezik, bevásárlási lehetőségek, üzletek, iskolák, rendelők, a főbb tömegközlekedési lehetőségek (több villamos és buszjárat) a közelben közvetlenül is elérhetőek. A Naphegy, Tabán, Budai Vár és közeli Duna-part remek kikapcsolódási és sportolási lehetőséget nyújt. Irodánk ingyenes hiteltanácsadással áll ügyfeleink rendelkezésére. A VEVŐINK RÉSZÉRE A KÖZVETÍTÉS DÍJMENTES. A hirdetésben szereplő adatok tájékoztató jellegűek!
https://ingatlanok.hu/elado/lakas/budapest-i-ker/135-millio-ft;83-negyzetmeter;3-szoba;tegla-epitesu/11592568