Az értékesítő:
Fodor Zsolt
+36 20 355 6000

Eladó családi ház Budapest XVIII. ker, 124 900 000 Ft, 100 négyzetméter

124 900 000 Ft
családi ház, 100 négyzetméter
Építőanyag:
Tégla
Egész szobák:
3
Komfort fokozat:
Összkomfort
Ingatlan állapota:
Kitűnő
Azonosító:
11592981
Értékesítés típusa:
eladó
Ingatlan típusa:
családi ház
Jelleg:
Családi ház
Település:
Budapest XVIII. ker
Alapterület:
100
Telekterület:
513
Ár:
124 900 000 Ft
Kor:
Új építésű
Terasz:
Van
Erkély:
Nincs
Telekterület típusa:
négyzetméter
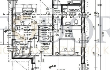
Eladó új építésű, önálló földszintes családi házak – kizárólag a Fodor Ingatlaniroda kínálatában! Budapest XVIII. kerületének közkedvelt részén, Újpéteri-telepen kínálunk megvételre két darab új építésű, önálló, földszintes családi házat, egymás mögötti elhelyezkedéssel, külön telekterülettel és kerítéssel. Ingatlanok főbb adatai 1. utcafronti ház Ár:119.9 Millió Forint • Összes alapterület: 113,27 m² • Hasznos lakótér: 87,92 m² • Garázs: 25,35 m² • Telekterület: 296 m² • Amerikai konyhás nappali + 2 hálószoba + gardrób 2. udvar felőli ház 214.9 Millió Forint • Összes alapterület: 99,64 m² • Hasznos lakótér: 74,47 m² • Garázs: 25,2 m² • Telekterület: 513 m² • Amerikai konyhás nappali + 2 hálószoba + gardrób Az elrendezések megtekinthetők az alaprajzokon. Kiemelt jellemzők Modern, energiahatékony műszaki tartalom • 2026-os építési előírásoknak megfelelő kivitelezés • 8 kW-os Fischer levegő–víz hőszivattyú • Padlófűtés az egész lakótérben • 3x16 Amper, illetve 1x25 A H tarifa Minőségi építőanyagok • 30 cm-es téglafőfalak + 10 cm homlokzati hőszigetelés • 10 cm-es Viablokk válaszfalak • 3 rétegű, thermo üvegezésű fehér műanyag nyílászárók • Elektromos redőny előkészítés • Antracit színű tetőcserép Extrák és kényelmi megoldások • Napelem előkészítés • Klíma előkészítés az amerikai konyhás nappaliban és a hálószobákban • Riasztórendszer előkészítés • Elektromos kapu előkészítés Műszaki részletek • Vasbeton sávalap • Fafödém 25–30 cm hőszigeteléssel • Precíz, minőségi kivitelezés • Megbízható, tőkeerős kivitelező, referenciákkal Elhelyezkedés – kiváló infrastruktúra Frekventált, mégis élhető környezet, ahol minden pár perc sétára elérhető: • Iskola, óvoda, bölcsőde • Bevásárlási lehetőségek • Tömegközlekedési kapcsolatok Várható átadás: 2026. II. negyedév vége Irodánk díjmentes hitelügyintézéssel, teljes körű tanácsadással, több bank ajánlatával, valamint az új CSOK Plusz ügyintézésével is segíti ügyfeleit.
https://ingatlanok.hu/elado/haz/budapest-xviii-ker/125-millio-ft;100-negyzetmeter;3-szoba;nincs-megadva-futes/11592981