Az értékesítő:
Nagy Barbara
+36 70 490 7364

Eladó családi ház Őrbottyán, 125 000 000 Ft, 118 négyzetméter

125 000 000 Ft
családi ház, 118 négyzetméter
Építőanyag:
Tégla
Egész szobák:
4
Komfort fokozat:
Összkomfort
Fűtés módja:
Gáz
Ingatlan állapota:
Kitűnő
Azonosító:
11593004
Értékesítés típusa:
eladó
Ingatlan típusa:
családi ház
Jelleg:
Családi ház
Település:
Őrbottyán
Alapterület:
118
Telekterület:
820
Ár:
125 000 000 Ft
Szintek száma:
Földszintes
Fűtés jellege:
Cirkó
Kor:
Új építésű
Terasz:
Van
Pince:
Nincs
Telekterület típusa:
négyzetméter
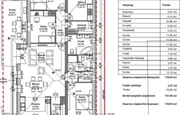
Eladásra kínálok Őrbottyán kiváló kertvárosias részén egy önálló családiházat, amely építése most kezdődik el. Az amerikai konyhás nappalit 3 hálószoba egészíti ki. Felosztása: Előszoba 3,91 m2 Étkező 8,14 m2 Nappali 25,66 m2 Konyha 8,28 m2 Közlekedő 4,23 m2 Szoba 11,55 m2 Szoba 11,34 m2 Szoba 11,85 m2 Gardrób 4,49 m2 Fürdő 7,20 m2 Háztartási helyiség 5,66 m2 Kamra 2,07 m2 Előtér 1,47 m2 Szoba 12,15 m2 Összesen: 118,00 m2 Fedett szélfogó 2,57 m2 Nyitott terasz 20,65 m2 Hasznos alapterület összesen: 118,00 m2 BRUTTÓ BEÉPÍTETT ALAPTERÜLET: 151,65 m2 Gázcirkós fűtés, padlófűtéses hőleadókkal. Műanyag három rétegű nyílászárók. Saját autóbealló, nagy méretű telek! Hívjon bizalommal!
https://ingatlanok.hu/elado/haz/orbottyan/125-millio-ft;118-negyzetmeter;4-szoba;cirko-futes/11593004