Az értékesítő:
Pető Balázs
+36 70 313 5798

Eladó iroda/üzlethelyiség Budapest XV. ker, 76 900 000 Ft, 75 négyzetméter

76 900 000 Ft
iroda/üzlethelyiség, 75 négyzetméter
Azonosító:
11593026
Értékesítés típusa:
eladó
Ingatlan típusa:
iroda/üzlethelyiség
Jelleg:
Üzlethelyiség
Település:
Budapest XV. ker
Alapterület:
75
Ár:
76 900 000 Ft
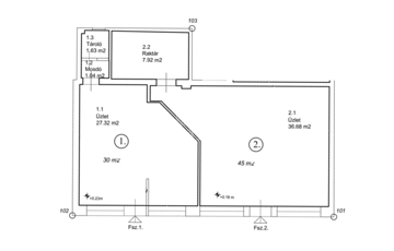
XV. kerület Kolozsvár utcájában, egyedülálló lehetőségként profilváltás miatt, eladásra kínálunk két, egymás melletti összesen 75 nm-es üzlethelyiséget, közvetlenül a piactérrel szemben, frekventált, forgalmas környezetben. A kiváló elhelyezkedésnek és az utca folyamatos átmenő forgalmának köszönhetően az ingatlanegyüttes szinte bármilyen üzleti tevékenységre alkalmas, legyen szó kereskedelmi, szolgáltató vagy irodai célú hasznosításról. A két üzlethelyiség jelenlegi elosztása a következő: Üzlethelység 1. (30 nm): 27,32 nm-es üzlettér 1,04 nm-es tároló 1,63 nm-es WC kézmosóval Üzlethelység 2. (45 nm): 36,68 nm-es üzlettér 7,92 nm,es wc, kézmosó, raktár Az ingatlanegyüttes jelenleg külön-külön üzletekként működnek, de a köztes elválasztó fal elbontása után egyben is hasznosítható, így egy 75 nm-es, egybenyitható üzleti tér alakítható ki, amely jelentősen bővíti a hasznosítás lehetőségeit. Az épület az 1940-es években épült, tégla falazattal, 5 cm-es EPS hőszigeteléssel, fa födémes padlástérrel és cseréptetővel rendelkezik. Az üzlethelyiségek önálló villanyórával (3 fázis), vízórával és egy gázmérővel felszereltek. A fűtést külön inverteres Gree hűtő-fűtő klímaberendezések biztosítják, míg a melegvíz-ellátásról elektromos bojlerek gondoskodnak. Igény esetén gázüzemű berendezés is használható, mivel gázbekötés és a mérőóra rendelkezésre állnak. Az ingatlanhoz tartozik egy közös használatú udvari kapubeálló, amely kirakodás idejére, előzetes megállapodás alapján vehető igénybe. Az épület padlásterének beépítése, illetve opcionális ráépítés esetén további hasznosítható vagy kiadható terület alakítható ki, amely jelentős értéknövelő lehetőséget biztosít. Az üzlethelyiségek közös helyrajzi számon szerepelnek, használatukat ügyvéd által ellenjegyzett használati megosztási szerződés szabályozza. Az ingatlan lakóingatlan besorolású, így igény szerint akár egy vagy több lakássá történő átalakításra is lehetőséget nyílik. Az ingatlanegyüttes ideális választás befektetőknek, vállalkozóknak vagy azok számára, akik rugalmasan alakítható, bővíthető és frekventált elhelyezkedésű üzleti ingatlant keresnek. Hitelre vásárló ügyfeleinknek teljeskörű, ingyenes, bank semleges ügyintézéssel állunk rendelkezésére. Irodánk ügyvédje pedig kedvező díjszabással vállalja az adásvételi szerződés elkészítését. Amennyiben még el kell adnia ingatlanát, kérem, tiszteljen meg bizalmával és kérje, nagy tapasztalattal rendelkező, az aktuális árakkal tisztában lévő, irodánk ajánlatát. P.B.
https://ingatlanok.hu/elado/iroda/budapest-xv-ker/77-millio-ft;75-negyzetmeter;uzlethelyiseg-jellegu;nincs-megadva-berendezett/11593026