Az értékesítő:
Csobai Lászlóné
+36 70 743 3389

Eladó családi ház Dánszentmiklós, 55 000 000 Ft, 60 négyzetméter

55 000 000 Ft
családi ház, 60 négyzetméter
Építőanyag:
Tégla
Egész szobák:
3
Fűtés módja:
Hőszivattyú
Ingatlan állapota:
Épülő
Azonosító:
11593091
Értékesítés típusa:
eladó
Ingatlan típusa:
családi ház
Jelleg:
Ikerház
Település:
Dánszentmiklós
Alapterület:
60
Telekterület:
400
Ár:
55 000 000 Ft
Szintek száma:
Földszintes
Fűtés jellege:
Villany
Kor:
Új építésű
Klíma:
Van
Telekterület típusa:
négyzetméter
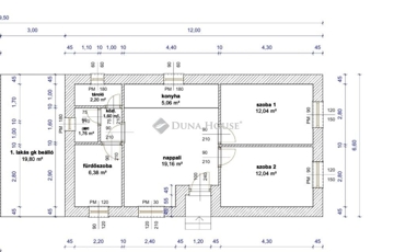
PRÉMIUM MINŐSÉGŰ ÚJ ÉPÍTÉSŰ IKERHÁZ FELEK DÁNSZENTMIKLÓS LEGÚJABB LAKÓPARKJÁBANMegbízható kivitelezőtől Várható átadás: 2026. szeptemberHa olyan új otthont keresel, ahol nemcsak a megjelenés, hanem a műszaki tartalom is valódi értéket képvisel, akkor ez a Dánszentmiklósi lakópark kiváló választás. A képek látványtervek, melyek a tervezett épületek stílusát és megjelenését mutatják be.A képek között referencia képek is láthatóak. A kivitelezést több mint 20 éves szakmai tapasztalattal rendelkező, profi kivitelező végzi, aki hosszú távon is megbízható, minőségi otthonokat épít.⸻ Elérhető ingatlanok 60 m²-es ikerház fél nappali + 2 hálószoba 400 m² saját telekrész fedett autóbeállóIdeális választás fiatal pároknak, kisebb családnak vagy befektetésnek.⸻ PRÉMIUM MŰSZAKI TARTALOM AMI VALÓBAN SZÁMÍT 30 cm vastag téglafalazat 15 cm-es homlokzati hőszigetelés, nemesvakolat záróréteggel Fa födém BRAMAC tetőcserép időtálló, minőségi fedés Hőszivattyús fűtési rendszer Padlófűtés az egész házban Burkolatok 8.000 Ft/m²-ig szabadon választhatók Modern nyílászárók Energiahatékony kialakítás, alacsony rezsiköltségAmi nagyon fontos nincsenek közös falak és közösen használt kert részekEz az otthon nem kompromisszum, hanem tudatos választás.⸻ Lokáció DánszentmiklósDánszentmiklós egy nyugodt, családbarát, folyamatosan fejlődő település Pest megyében. Budapest kb. 30 perc alatt elérhető autóval Helyben elérhető: iskola, óvoda, bölcsőde Orvosi ellátás biztosított Zöld környezet, tiszta levegő, barátságos közösség⸻ Új építésű otthon masszív szerkezettel, korszerű technológiával, saját 400 nm telekkel biztos alapokon.Ne maradj le, az ilyen műszaki tartalmú ingatlanok ritkák ebben az árkategóriában! Érdeklődj bizalommal, és foglald le időben! 55000000 Ft
https://ingatlanok.hu/elado/haz/danszentmiklos/55-millio-ft;60-negyzetmeter;3-szoba;villany-futes/11593091