Az értékesítő:
Kruller Petra
+36 20 583 7555

Eladó családi ház Seregélyes, 66 900 000 Ft, 101 négyzetméter

66 900 000 Ft
családi ház, 101 négyzetméter
Egész szobák:
4
Komfort fokozat:
Összkomfort
Fűtés módja:
Gáz
Ingatlan állapota:
Felújított
Azonosító:
11593381
Értékesítés típusa:
eladó
Ingatlan típusa:
családi ház
Jelleg:
Családi ház
Település:
Seregélyes
Alapterület:
101
Telekterület:
1020
Ár:
66 900 000 Ft
Szintek száma:
Földszintes
Fűtés jellege:
Cirkó
Kor:
50 évesnél régebbi
Terasz:
Van
Pince:
Nincs
Telekterület típusa:
négyzetméter
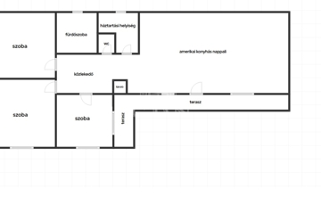
Vh-004501 Seregélyes központjában 101m2 hasznos alapterületű, nappali +3 hálószobás, önálló, teljes körűen felújított és újra gondolt családi ház 1020m2-es telekterülettel eladó! A település rendezett, folyamatosan fejlődik és bővül. Székesfehérvártól, illetve a Velencei-tó partjától mindössze 15 perc autóútra található. A településen számos buszmegálló és vasútállomás is található. Az ingatlan környezetében szinte minden elérhető, ami a kényelmes életvitelhez elengedhetetlen (gyógyszertár, orvosi rendelő, általános és középiskola, posta, bank, boltok, sportpályák...). Az ingatlan 1976-ban épült vegyesfalazattal (vályog, tégla). Az elmúlt évek során teljeskörű felújításon esett át, mely magába foglalja a víz,- és villanyvezeték, nyílászárók, hideg-meleg burkolatok cseréjét, a villanyhálózat 32 A-ra bővült (nappali és éjszakai áram). A teljes fűtésrendszer korszerűsítve lett. A homlokzati falak 5cm vastag szigetelést kaptak, a vályog részre légáteresztő vakolat is került. A tetőszerkezet felújított, új fedést kapott. A födém fából készült, 30cm vastag kőzetgyapottal szigetelve, a padlástér járhatóvá lett téve. A padló is új szigeteléssel lett ellátva. Lábazata terméskő, az ingatlan nem vizesedik, műszakilag kiváló állapotú. A ház melegét egy teljesen új Ariston kazán biztosítja radiátoros hőleadással. Elosztását tekintve 101m2 hasznos alapterületű. Amerikai konyhás nappali, közlekedő, 3 tágas hálószoba, fürdőszoba, vendég WC, háztartási helyiség került kialakításra. A telek 1020m2-es teljesen körbekerített, található rajta 2 ásott kút és számos gyümölcsfa is. A bejutás elektromos kapun keresztül biztosított. A helyi építési szabályzat lehetőséget kínál további melléképületek, garázs kialakítására. Utcafrontja: 20m Az ingatlan per,-és tehermentes, azonnal költözhető. Eladási irányár: 69,9 M Ft A terület mérete számos lehetőséget kínál a kikapcsolódásra, legyen szó kertművelésről vagy medence kialakításáról. Ideális választás mindenki számára, legyen szó gyermekkel költöző családoknak, vagy pihenni vágyóknak, illetve az elhelyezkedése miatt befektetésre is tökéletes választás. A ház a kényelmes otthont biztosít a lakók számára, mind a belső lakrészben, mind a kert, udvar, illetve a terasz területén. Nyugalmat sugároz, a mindennapos rohanások után. Ha felkeltette érdeklődését, hívjon bizalommal, éljen ingyenes, személyre szabott hitelügyintézés szolgáltatásunkkal. Segítünk továbbá adásvételhez szükséges ügyvédi közreműködésben, energetikai tanúsítvány, valamint értékbecslés elkészítésében . For English details please send us a message or an e-mail, thank you.
https://ingatlanok.hu/elado/haz/seregelyes/67-millio-ft;101-negyzetmeter;4-szoba;cirko-futes/11593381