Az értékesítő:
Nyegrutz Tibor
+36 30 250 4987

Eladó lakás Budapest XXII. ker, 122 900 000 Ft, 207 négyzetméter

122 900 000 Ft
lakás, 207 négyzetméter
Építőanyag:
Tégla
Egész szobák:
5
Komfort fokozat:
Összkomfort
Ingatlan állapota:
Felújítandó
Azonosító:
11594162
Értékesítés típusa:
eladó
Ingatlan típusa:
lakás
Település:
Budapest XXII. ker
Alapterület:
207
Ár:
122 900 000 Ft
Tulajdonviszony:
Saját
Emelet:
1. emelet
Fűtés jellege:
Cirkó
Kilátás:
kertre néző
Építési év:
21-50 éves
Erkély:
Van
Pince:
Nincs
Tároló:
Nincs
Lift:
Nincs
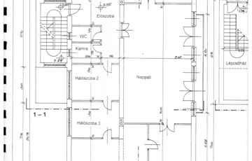
JÓ BEFEKTETÉSI LEHETŐSÉG, MIVEL AZ INGATLAN IGÉNY SZERINT FELOSZTHATÓ TÖBB LAKÁSRA, IRODÁRA! Az ingatlan kizárólag a mi irodánk kínálatában elérhető! XXII. ker. Rózsavölgyben az Ady Endre úton, egy 194m2-es hasznos alapterületű + 27 m2-es teraszokkal rendelkező, felújítandó első emeleti lakást kínálunk megvételre. Az ingatlanban összesen három lakás, egy iroda és egy raktár helyiség található, használati szerződéssel rendezett, megosztott. Helyiségei: előszoba, közlekedő, nappali(66m2) konyha+étkező(24m2), 4 szoba(12m2, 12m2, 24m2, 16m2), fürdőszoba+Wc, Wc, gardrób(4m2), teraszok(27m2). Az eladó lakás hatalmas terekkel rendelkezik, jelen állapota felújítandó. Külön mérőórákkal rendelkezik, közös lépcsőházból közelíthető meg. Kertrész valamint autóbeálló nem tartozik a lakáshoz. 2023-ban a lakásban lévő összes nyílászárók műanyagra lettek cserélve. Tömegközlekedése kiváló, a 41-es villamos, valamint a busz megálló néhány perces sétatávolságra található. Szintén közel van a budaörsi bevásárló központ, M4-es metró állomás, Kelenföldi pályaudvar, Tesco, Auchan, XXXLutz, Praktiker, IKEA, Media Mark, stb. Kedvezményes hiteligénylés, CSOK PLUSZ, BABAVÁRÓ támogatás esetén, kezdeményezheti a kapcsolatfelvételt díjmentesen bankfüggetlen hitelszakértő munkatársunkkal. Az ingatlan megtekintése előre egyeztetett időpontban lehetséges, akár hétvégén is. Amennyiben felkeltette az érdeklődését, további kérdéseivel kapcsolatban várom jelentkezését.
https://ingatlanok.hu/elado/lakas/budapest-xxii-ker/123-millio-ft;207-negyzetmeter;5-szoba;tegla-epitesu/11594162