Az értékesítő:
Nyegrutz Tibor
+36 30 250 4987

Eladó iroda/üzlethelyiség Budapest XXII. ker, 122 900 000 Ft, 207 négyzetméter

122 900 000 Ft
iroda/üzlethelyiség, 207 négyzetméter
Azonosító:
11594163
Értékesítés típusa:
eladó
Ingatlan típusa:
iroda/üzlethelyiség
Jelleg:
Iroda
Település:
Budapest XXII. ker
Alapterület:
207
Ár:
122 900 000 Ft
Elhelyezkedés:
Házban
Lift:
Nincs
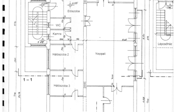
JÓ BEFEKTETÉSI LEHETŐSÉG, MIVEL AZ INGATLAN IGÉNY SZERINT FELOSZTHATÓ TÖBB IRODÁRA, LAKÁSRA! Az ingatlan kizárólag a mi irodánk kínálatában elérhető! XXII. ker. Rózsavölgyben az Ady Endre úton, egy 194m2-es hasznos alapterületű + 27 m2-es teraszokkal rendelkező, felújítandó első emeleti lakást kínálunk megvételre, mely alkalmas irodának, telephelynek, cégközpontnak. Az ingatlanban összesen három lakás, egy iroda és egy raktár helyiség található, használati szerződéssel rendezett, megosztott. Helyiségei: előszoba, közlekedő, nappali(66m2) konyha+étkező(24m2), 4 szoba(12m2, 12m2, 24m2, 16m2), fürdőszoba+Wc, Wc, gardrób(4m2), terasz(27m2). Az eladó lakás hatalmas terekkel rendelkezik, jelen állapota felújítandó. Külön mérőórákkal rendelkezik, közös lépcsőházból közelíthető meg. Kertrész valamint autóbeálló nem tartozik a lakáshoz. 2023-ban a lakásban lévő összes nyílászárók műanyagra lettek cserélve. Tömegközlekedése kiváló, a 41-es villamos, valamint a busz megálló néhány perces sétatávolságra található. Szintén közel van a budaörsi bevásárló központ, M4-es metró állomás, Kelenföldi pályaudvar, Tesco, Auchan, XXXLutz, Praktiker, IKEA, Media Mark, stb. Az ingatlan megtekintése előre egyeztetett időpontban lehetséges, akár hétvégén is. Amennyiben felkeltette az érdeklődését, további kérdéseivel kapcsolatban várom jelentkezését.
https://ingatlanok.hu/elado/iroda/budapest-xxii-ker/123-millio-ft;207-negyzetmeter;iroda-jellegu;nincs-megadva-berendezett/11594163