Az értékesítő:
Horváth Zoltán
+36 70 550 6680

Eladó családi ház Üllő, 109 900 000 Ft, 120 négyzetméter

109 900 000 Ft
családi ház, 120 négyzetméter
Építőanyag:
Tégla
Egész szobák:
5
Komfort fokozat:
Dupla komfort
Ingatlan állapota:
Kitűnő
Azonosító:
11594362
Értékesítés típusa:
eladó
Ingatlan típusa:
családi ház
Jelleg:
Családi ház
Település:
Üllő
Alapterület:
120
Telekterület:
300
Ár:
109 900 000 Ft
Kor:
Új építésű
Telekterület típusa:
négyzetméter
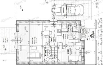
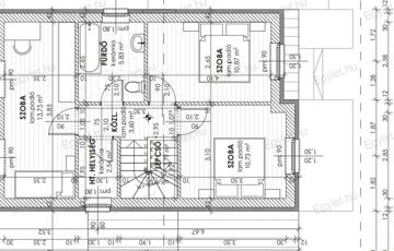
Megvételre kínálunk Üllőn egy új építésű, hőszivattyús, 120 m²-es, teraszos, 5 szobás, dupla komfortos, gardróbos, családiházat. Megvételre kínálunk Üllőn egy új építésű, hőszivattyús, 120 m²-es, teraszos, 5 szobás, dupla komfortos, gardróbos, családiházat. A ház tájolása és elosztása kiváló, tágas, világos, nyitott nagy terekkel rendelkezik.   Az ingatlan igényes kivitelezéssel, minőségi alapanyagokból, átgondolt tervezéssel, egyedi belső kialakítással készült, ahol a kényelem és az átgondolt tervezés mellett az energia takarékosság volt a fő szempont. Az ingatlan nappalija egy 14 nm-es teraszon keresztül kertkapcsolatos. Az otthon klímájáról egy modern, energia takarékos, innovatív levegő-víz hőszivattyú gondoskodik. A hőszivattyú a padlón fűt vagy hűt, így télen-nyáron egyöntetű kellemes a hőmérséklet. A használati melegvíz ellátás okos bojlerről történik.   A ház egy nagyobb telken fekszik, melyből kb. 300 nm privát kert. Gépjármű beállási lehetőségével a térkövezett gépjármű beállón lehet biztonságosan parkolni.   A kulcsrakész ár tartalmazza az elektromos redőny előkészítést, három rétegű nyílászárókat, riasztó előkészítést, kaputelefon és motoros kapu kiépítést, valamint a klíma előkészítés kiépítését.   PÁR HÉTEN BELÜL KÖLTÖZHETŐ!   Igénybe vehető lehetséges kedvezmények: - CSOK - 5% Áfa visszatérítés - Babaváró hitel - Illeték kedvezmény vagy mentesség   Helyiség lista a földszinten: - Előtér - Fürdőszoba - Amerikai konyha - Étkező - Kamra - Nappali  - Szoba - Terasz   Helyiség lista az emeleten: - Lépcsőház - Fürdőszoba - Közlekedő - Gardrób - Szoba - Szoba - Szoba   Az ingatlan biztonságos, kertes házas övezetben, Üllő egyik legkedveltebb lakóparkjában található. Közlekedése kiváló, busszal Budapest, vagy vonattal a Nyugati pu. rövid idő alatt megközelíthető. A környék fejlett infrastruktúrájának köszönhetően bővelkedik a szociális intézményekben, bölcsőde, óvoda, általános iskola, orvosi intézmények, bevásárlási lehetőségek, találhatóak a közelben.   Hitel, CSOK igénylésben díjmentes ügyintézéssel állunk rendelkezésére! Várom megtisztelő érdeklődésüket.
https://ingatlanok.hu/elado/haz/ullo/110-millio-ft;120-negyzetmeter;5-szoba;nincs-megadva-futes/11594362