Az értékesítő:
Lestyán László Józsefné Lakati Melinda
+36 70 455 0967

Eladó családi ház Balatonmáriafürdő, 45 000 000 Ft, 79 négyzetméter

45 000 000 Ft
családi ház, 79 négyzetméter
Építőanyag:
Könnyűszerkezetes
Egész szobák:
1
Komfort fokozat:
Összkomfort
Fűtés módja:
Villany
Ingatlan állapota:
Épülő
Azonosító:
11595214
Értékesítés típusa:
eladó
Ingatlan típusa:
családi ház
Jelleg:
Ikerház
Település:
Balatonmáriafürdő
Alapterület:
79
Telekterület:
350
Ár:
45 000 000 Ft
Szintek száma:
Földszintes
Fűtés jellege:
Villany
Kor:
Új építésű
Erkély:
Van
Telekterület típusa:
négyzetméter
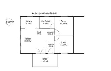
Könnyűszerkezetes szerkezetkész ikerház fele- BALATONMÁRIAFÜRDŐ FŐUTCÁJÁN -alakítsa saját otthonát, a Balaton közelében: Csendes, nyugodt környezetben, mégis frekventált helyen kínálunk eladásra egy 79 m2-es ikerházat Balatonmáriafürdőn, 380 m2-es nyeles telken. Elrendezés: 1 tágas nappali 2 hálószoba konyha + étkező + előszoba fürdőszoba WC-vel udvari parkolási lehetőség Az ingatlan szerkezetkész állapotú: kívülről minden készen van, belül pedig az új tulajdonosra vár a végső kialakítás: gipszkartonozás, burkolatok, festés és egyéb szakipari munkák. Így teljes mértékben saját igényei szerint formálhatja álmai otthonát vagy nyaralóját. Közművek: Víz, villany, szennyvíz bekötve a házba. Gázcsonk az utcában. Tervezett fűtés: elektromos klíma Építési engedély rendelkezésre áll, használatbavételi engedély még nincs - viszont az egyik legnagyobb előnye éppen az, hogy a belső kialakítás teljes mértékben szabadon választható. Ideális választás saját otthonnak, nyaralónak vagy befektetésnek a Balaton part közelében. Télen, nyáron programok a településen. A MÓLÓ melletti kikötőből indul hajójárat a Balaton északi városaiba. ( Keszthely, Badacsony...stb) A faluba egyre több a beköltöző. Központjában igényes üzletek, éttermek, híres DISCO, és a még híresebb FLORIDA fagyizó várja a lakókat és a kirándulókat. Kiépített Központi Strandja és szabad strandjai, csónakkikötő és a Nyugati csatorna horgász lehetősége kihagyhatatlan az itt lakók és nyaralók számára. Ne szalassza el ezt a kivételes lehetőséget, hívjon és tekintse meg személyesen! Referencia szám: M304758
https://ingatlanok.hu/elado/haz/balatonmariafurdo/45-millio-ft;79-negyzetmeter;3-szoba;villany-futes/11595214