Az értékesítő:
Balla László

Eladó iroda/üzlethelyiség Debrecen, 750 000 000 Ft, 700 négyzetméter

750 000 000 Ft
iroda/üzlethelyiség, 700 négyzetméter
Azonosító:
11595447
Értékesítés típusa:
eladó
Ingatlan típusa:
iroda/üzlethelyiség
Jelleg:
Iroda
Település:
Debrecen
Alapterület:
700
Ár:
750 000 000 Ft
Tulajdonviszony:
Tulajdonjog
Emelet:
Földszint
Elhelyezkedés:
Irodaházban
Lift:
Van
Berendezés:
Nincs
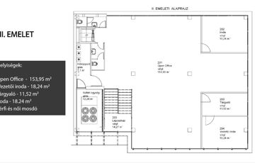
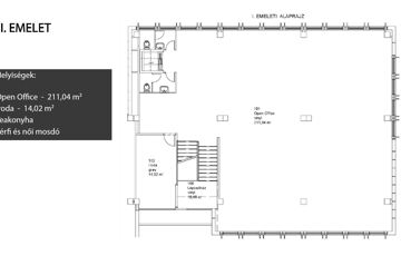
Eladó irodaház Debrecen szívében, azonnal birtokba vehető! Debrecen az ország egyik legdinamikusabban fejlődő gazdasági, egyetemi, turisztikai és kulturális központja. A városban olyan meghatározó nagyvállalatok telepedtek meg, mint a BMW, az NI, a CATL , aTEVA, a FAG, a KITE vagy a HUNÉP. A folyamatos beruházások, a határ közelsége és a saját repülőtér mind hozzájárulnak a térség kiemelkedő innovációs és gazdasági fejlődéséhez. Az eladó irodaház a belváros szívében, a központtól mindössze 3 perc sétára található. A modern, inspiráló környezetben kialakított épület három szinten kínál irodákat, közös konyhával és minden szükséges infrastruktúrával. Az épület üzemeltetése nagyon gazdaságos mivel saját napelees rendszerrel van felszerelve, ez biztosítja a hőszivatyus fűtéshez szükséges energiát. Igaz hogy 3 szintes az épület de mégis saját belső liftel rendelkezik. A földszinten plusz egy galéria található, így bemutató teremnek és irodának is tökéletes, akár kereskedelmi egység(webshop), akár egészségügyi intézmény is létrehozható itt. Kiváló elhelyezkedés és infrastruktúra: Főtér és Nagytemplom: 5 perc Villamosmegálló (1, 2-es járat): 1-4 perc Buszmegálló (11, 14I, 15, 15Y, 24, 24Y, 43): 2 perc 200 férőhelyes parkoló közvetlenül az épület mögött Bank, posta, gyógyszertár, éttermek és bevásárlóközpont pár perc sétára Az ingatlan fő előnyei: Kivételes lokáció a belvárosban Háromszintes, azonnal birtokba vehető irodaház Kényelmes közlekedés autóval és tömegközlekedéssel Széleskörű szolgáltatások közvetlen közelben Stabil értéktartás és befektetési potenciál Ez az irodaház ideális választás azok számára, akik Debrecen központjában szeretnének saját tulajdonú irodát, vagy hosszú távra keresnek értékálló befektetést. A megvásárlásban segítséget nyujthat a vállakozásoknak elérhető OTP-s beruházási hitel illetve a KAVOS 3% hitelt. A hitel széles körben alkalmas beruházási célok megvalósítására, állami kamat-, kezelési költség- és kezességi díjtámogatás, akár 500 millió forint hitelösszeg igényelhető, legfeljebb 10 éves futamidőre nyújtható. Megtekíntésért hívjon most!
https://ingatlanok.hu/elado/iroda/debrecen/750-millio-ft;700-negyzetmeter;iroda-jellegu;nem-berendezett/11595447