Az értékesítő:
Edvi Zsuzsanna
+36 20 277 7237

Eladó lakás Győr, 59 005 750 Ft, 62 négyzetméter

59 005 750 Ft
lakás, 62 négyzetméter
Egész szobák:
3
Ingatlan állapota:
Átlagos
Azonosító:
11595918
Értékesítés típusa:
eladó
Ingatlan típusa:
lakás
Település:
Győr
Alapterület:
62
Ár:
59 005 750 Ft
Emelet:
1. emelet
Fűtés jellege:
Cirkó
Építési év:
Új építésű
Erkély:
Van
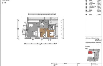
Ha olyan otthont keres családjának, ahol nyugodt környezet, modern műszaki tartalom és kiváló elhelyezkedés találkozik, akkor ez a lakás Önnek szól. Szitásdomb II.lakóparkban épülő, A+ energetikájú, prémium minőségű lakás kiváló kivitelezőtől A Szitásdomb II. lakóparkban, Győr belvárosától mindössze 10 percre, az M1 autópálya elkerülő és az AUDI közelében kínálok prémium minőségben épülő, A+ energetikájú lakást, megbízható, nagy tapasztalattal rendelkező kivitelezőtől. A terület közigazgatásilag Vámosszabadihoz tartozik, csendes, kertvárosi környezetben. Lakópark előnyei • családbarát, nyugodt környezet • a lakóparkban kiépülő játszótér, óvoda, bölcsőde, orvosi rendelő, üzletek • kiváló közlekedés Győr és az Ipari Park irányába • ideális választás saját otthonnak és befektetésnek is A lakás főbb jellemzői • 61,69 m² alapterület • nappali + 2 külön nyíló szoba • 4,2 m² erkély 1. emeleti, DK fekvésű • praktikus, jól élhető alaprajz • kiváló hő- és hangszigetelés Helyiségek: • Előtér: 2,72 m² • Nappali: 20,25 m² • Konyha–étkező: 7,61 m² • Szoba: 9,8 m² • Szoba: 10,54 m² • Fürdő: 4,06 m² • WC / háztartási helyiség: 2,86 m² • Közlekedő: 3,85 m² Műszaki tartalom – prémium kivitel • 30 cm-es tégla főfalak, lakások között 30 cm hanggátló falazat • 20 cm homlokzati hőszigetelés • 3 rétegű üvegezésű INTERNORM nyílászárók kívül antracit, belül fehér színben • GELAN biztonsági bejárati ajtó kívül antracit, belül fehér színben • központi hőszivattyús rendszer egyedi mérőkkel • padlófűtés + mennyezethűtés (klíma nem szükséges) • elektromos alumínium redőny-előkészítés • exkluzív edzett üveg erkélykorlát • antracit színvilágú külső megjelenés Parkolás Minden lakáshoz kötelező 2 db gépkocsibeálló megvásárlása Ár: 1.000.000 Ft + 27% ÁFA / db (A lakáshoz tartozó parkolók: P22–P23) Egyéb információk • az ár emelt szintű fűtéskész állapotra vonatkozik • tartalmazza az 5% ÁFÁ-t és a telekhányadot • kulcsrakész befejezés egyedi megállapodás alapján • várható átadás: 2026 tavasz További költségek: • ügyvédi díj: vételár 0,8%-a • albetétesítés, földhivatali eljárás: egyszeri 150.000 Ft Finanszírozás Igény esetén ingyenes hiteltanácsadás és teljes körű ügyintézés biztosított. Minden jelenleg elérhető állami támogatás igénybe vehető. A társasház további elérhető lakásai: L10 – 1. emelet, 61,69 m2 + 4,2 m2 erkély bruttó 59.005.750 Ft L11 – 1. emelet, 62,45 m2 + 13,91 m2 erkély bruttó 64.199.625 Ft L16 – 1. emelet, 65,49 m2 + 4,2 m2 erkély bruttó 62.520.750 Ft L20 – 1. emelet, 68,41 m2 + 6 m2 erkély bruttó 66.054.250 Ft L21 – 2. emelet, 98,71 m2 + 34,33 m2 erkély bruttó 107.184.375 Ft L22 – 2. emelet, 92,46 m2 + 22 m2 erkély bruttó 95.654.250 Ft Nagy az érdeklődés — ne halogassa a megtekintést! Hívjon, nézze meg! Most még választhat!
https://ingatlanok.hu/elado/lakas/gyor/59-millio-ft;62-negyzetmeter;3-szoba;nincs-megadva-epitesu/11595918