Az értékesítő:
Edvi Zsuzsanna
+36 20 277 7237

Eladó lakás Győr, 64 199 625 Ft, 62 négyzetméter

64 199 625 Ft
lakás, 62 négyzetméter
Egész szobák:
3
Ingatlan állapota:
Átlagos
Azonosító:
11595919
Értékesítés típusa:
eladó
Ingatlan típusa:
lakás
Település:
Győr
Alapterület:
62
Ár:
64 199 625 Ft
Emelet:
1. emelet
Fűtés jellege:
Cirkó
Építési év:
Új építésű
Erkély:
Van
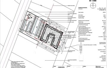
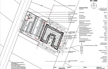
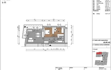
Ideális választás családok számára: új építésű, erkélyes lakás kertvárosi környezetben, Győr belvárosától mindössze 10 percre Szitásdomb II.lakóparkban épülő, A+ energetikájú, prémium minőségű lakás kiváló kivitelezőtől Győr belvárosától 10 percre, M1 autópálya elkerülő közelében, AUDI-hoz közel a Szitásdomb II. lakóparkban, kertvárosi környezetben épülő 25 lakásos társasházban kínálok magas műszaki tartalommal épülő, prémium minőségű lakásokat. Nagy múltú, megbízható kivitelező cég. A terület közigazgatásilag Vámosszabadihoz tartozik. A társasház egy 3228 m2-es hatalmas telekre épült. Műszaki tartalom: - 30 cm-es tégla főfalak, a lakások közöttb30 cm vastag hanggátló falazattal - Válaszfalak 10 cm vtg. válaszfaltéglából készülnek. - POROTHERM áthidaló gerendák - 20 cm homlokzati hőszigetelés - erkélylefedéseknél antracit színű korclemez fedés - 3 rétegű üveggel ellátott INTERNORM műanyag nyílászárók kívül antracit színben - FŰTÉS és meleg víz központi HŐSZIVATTYÚS rendszerrel, PADLÓFŰTÉS - MENNYEZET HŰTÉS, így nincs szükség klímákra - rejtett dobozos, elektromos alumíníum redőny-előkészítés - exkluzív üvegkorlát az erkélyen A 62,43 m2-es, 1. emeleti (L11), DNY fekvésű lakás HELYISÉGEI: Előtér: 7,45 m2 Nappali: 18,62 m2 Konyha-étk: 7,55 m2 Szoba 10,64 m2 Szoba 11,9 m2 Fürdő: 4,98 m2 WC: 1,31 m2 A lakáshoz tartozik még 14,16 m2 ERKÉLY. Az ár emelt szintű fűtéskész állapotra vonatkozik és tartalmazza az 5% Áfát, valamint a telekhányadot. Kivitelező egyéni megállapodás alapján vállalja a kulcsrakész befejezést is. Minden lakáshoz kötelező megvásárolni 2 db gépkocsibeállót, melynek darabja 1.000.000 Ft + (27% áfa). A lakáshoz tartozó parkolók száma: P24-P25 Várható átadás: 2026. tavasz További költségek: - ügyvédi díj: lakás vételárnak 0,8%-a - egyszeri 150.000 Ft, az albetétesítéshez, földhivatali eljáráshoz Amennyiben hitelre van szüksége ingyenes tanácsadással és teljes körű ügyintézéssel állunk rendelkezésére. Minden jelenleg hatályos támogatás igénybe vehető! A társasház további elérhető lakásai: L10 – 1. emelet, 61,69 m2 + 4,2 m2 erkély bruttó 59.005.750 Ft L11 – 1. emelet, 62,45 m2 + 13,91 m2 erkély bruttó 64.199.625 Ft L16 – 1. emelet, 65,49 m2 + 4,2 m2 erkély bruttó 62.520.750 Ft L20 – 1. emelet, 68,41 m2 + 6 m2 erkély bruttó 66.054.250 Ft L21 – 2. emelet, 98,71 m2 + 34,33 m2 erkély bruttó 107.184.375 Ft L22 – 2. emelet, 92,46 m2 + 22 m2 erkély bruttó 95.654.250 Ft A lakóparkban kiépítésre kerül: játszótér, óvoda, bölcsőde, orvosi rendelő, szolgáltatók és számos üzlet is. A csendes kisvárosi környezet, a város és az Ipari Park közelsége, könnyű megközelíthetősége miatt kitűnő választás akár saját lakásnak, akár befektetésnek is. Nagy az érdeklődés, ne halogassa a megtekintést! Várom hívását!
https://ingatlanok.hu/elado/lakas/gyor/64-millio-ft;62-negyzetmeter;3-szoba;nincs-megadva-epitesu/11595919